3-комн. квартира на ул. Глинки, 9

Идентификатор: 480183   Дата обновления: 20-10-2025

543
Показать на карте

Дополнительная информация

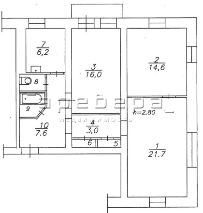
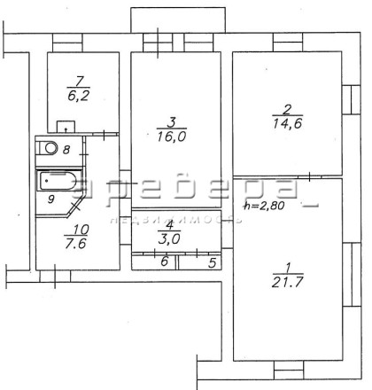
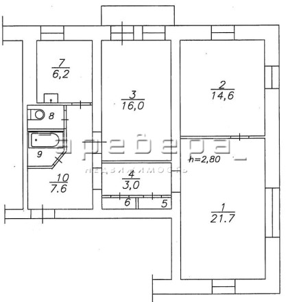
  • Описание: Продаётся 3-комнатная квартира площадью 75,8 кв.м на втором этаже двухэтажного кирпичного дома. Квартира светлая и очень теплая. Сделан хороший косметический ремонт. Выполнена вся основная, трудозатратная и самая грязная работа. Установлены пластиковые окна, заменены батареи на алюминиевые радиаторы. Стены свежеокрашены. Санузел раздельный. Из трёх комнат две раздельные, одна — проходная.
    Инфраструктура: Рядом магазины, аптеки, остановка общественного транспорта!
    Условия продажи: Отличный вариант для семьи, ценящей простор и спокойствие.

Актуальные новости про недвижку в нашем телеграм-канале: ПРОнедвижку

Похожие квартиры

По цене
По площади
По расположению