1-комн. квартира на пр-т Комсомольский, 17а

Идентификатор: 481619   Дата обновления: 27-10-2025

290
Показать на карте

Дополнительная информация

  • Описание:Предлагаю купить уникальную просторную 1 комнатную квартиру индивидуальной планировки в современном доме из классического кирпича в микрорайоне «Северный» г.Красноярска.
    Данный дом построен в 2006 году застройщиком «Зодчий», имеет кирпичные несущие стены около 1 метра.
    Квартира в данном доме подойдет ценителям настоящего качества постройки дома, полнейшей тишины в квартире (не смотря на то, что дом расположен в мегаполисе), и комфортного микроклимата качественном кирпичном доме.
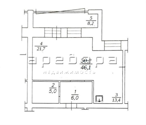
    Планировка квартиры очень удобная, общая площадь квартиры составляет 50.2 кв. м, из которых отапливаемая площадь 46,1 м2. жилая занимает 21.7 кв. м, а кухня — 13.4 кв. м. Квартира расположена на 4 этаже. Окна выходят на южную сторону в междворовое пространство, что обеспечивает тишину и спокойствие.
    В квартире сделан косметический ремонт, что позволяет сразу заехать и жить. Комфорт начинается уже с прихожей площадью 6м2, в которой имеется встроенный шкаф купе, который остается покупателю в подарок. На полу в прихожей итальянский уложен керамогранит.
    Санузел в квартире также просторный, имеет место под стиральную машину, отделан качественным кафелем, и оборудован комбинированным светом и встроенными полочками.
    Просторная кухня станет отличным местом для семейных ужинов. В зоне кухне на полу уложен итальянский керамогранит. Покупателю в подарок остается кухонный гарнитур.
    В просторной гостиной имеется два окна, что наполняет ее солнечным светом, и визуально увеличивает пространство. В гостиной имеется встроенный шкаф купе, который также остается покупателю в подарок. На полу в гостиной уложен ковролин. Из гостиной имеется выход на шикарную застекленную лоджию площадью 8,2м2, с выведенным светом и встроенным шкафом для хранения сезонных вещей.
    Придомовая территория: Дом расположен внутри квартала на удаленности от городских магистралей. Во дворе есть большая наземная парковка, а также детская и спортивная площадки.
    Инфраструктура: Район, в котором расположена квартира, имеет развитую инфраструктуру. Поблизости находятся школы и детские сады, что удобно для семей с детьми. В шаговой доступности магазины, где можно приобрести все необходимое. Отличная транспортная доступность: рядом остановки общественного транспорта.
    Особой ценностью дома является наличие в непосредственной близости от дома большого парка-сквера «Добрые соседи», в котором всегда приятно проводить время.
    Условия продажи: Квартира продается без обременений, подходит под ипотеку. Все документы готовы к сделке, что позволяет быстро оформить покупку.
    Приезжайте на просмотр и оцените все преимущества этой квартиры. Звоните и записывайтесь на удобное для вас время!

Актуальные новости про недвижку в нашем телеграм-канале: ПРОнедвижку

Похожие квартиры

По цене
По площади
По расположению