1-комн. квартира на ул. Цимлянская, 35ж

Идентификатор: 481724   Дата обновления: 29-12-2025

434
Показать на карте

Дополнительная информация

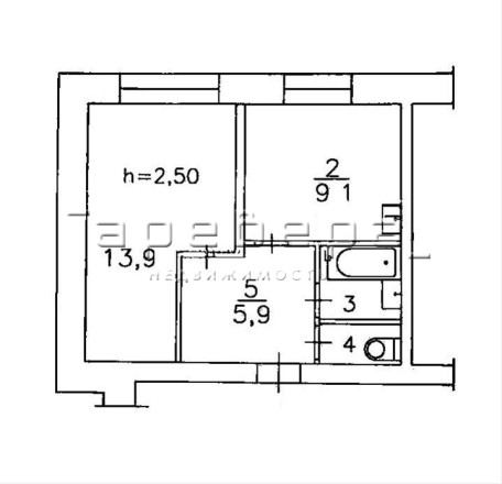
  • Описание: Предлагаю купить отличную, просторную 1 комнатную квартиру площадью 32,8 кв.м., по улице Цымлянская 35Ж города Красноярска. Дом кирпичный 1975 года постройки. Квартира находится на 1 этаже, остается кухонный гартинур. Санузел совмещенный, в кафеле. Комнаты просторные, правильной квадратной формы.
    Инфраструктура: ЖК с развитой инфраструктурой. Вокруг множество магазинов и пунктов выдачи интернет заказов, в 5 минутах находится гипермаркет стройматериалов Лемана Про. Дом расположен в самом центре жилого района, что является преимуществом. В трёх минутах ходьбы находится остановка общественного транспорта, что позволяет без труда добраться в любую точку города.
    Условия продажи: Чистая продажа. Подходит под любой вид расчета. Успейте записаться на просмотр. Документы готовы к сделке. На все интересующие Вас вопросы готова ответить по телефону

    Есть покупатель. Внесён аванс.

Актуальные новости про недвижку в нашем телеграм-канале: ПРОнедвижку

Похожие квартиры

По цене
По площади