2-комн. квартира на ул. Партизана Железняка, 57

Идентификатор: 481804   Дата обновления: 10-12-2025

256
Показать на карте

Дополнительная информация

  • Описание: Предлагаем к покупке крупногабаритную 2-комнатную квартиру мкр.Иннокентьевский!
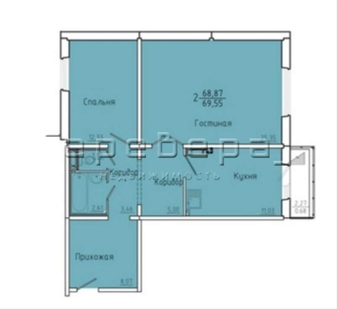
    Квартира площадью 68.9 кв.м расположена на 5-ом этаже панельного 17-ти этажного дома.

    Ремонт от застройщика, без обременений! Один взрослый собственник, никто не прописан, подходит под любой вид расчета.

Актуальные новости про недвижку в нашем телеграм-канале: ПРОнедвижку

Похожие квартиры

По цене
По площади
По расположению