1-комн. квартира на ул. 9 Мая, 5

Идентификатор: 481958   Дата обновления: 17-11-2025

294
Показать на карте

Дополнительная информация

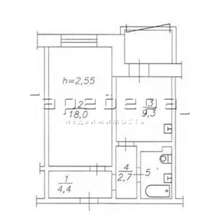
  • Описание: Предлагаю купить однокомнатную квартиру в мкр. Северный просторную, уютную, теплую в кирпичном доме на 1 этаже. Дом 2005 года постройки. В квартире сделан простой ремонт, окна ПВХ, на полу линолеум. Совмещенный санузл в кафеле. Балкон застеклен. Установлен кондиционер.
    Придомовая территория: Дом с большим благоустроенным двором и детской площадкой. Автомобильная парковка. Вход в подъезд оборудован пандусом, что очень удобно для мам с колясками и людьми с ограниченными возможностями. В подъездах чисто и очень уютно.
    Инфраструктура: Отличная транспортная доступность. Вокруг множество остановок общественного транспорта, что позволяет без труда доехать в любую точку города как на общественном транспорте, так и на личном автомобиле. Рядом пункты выдачи интернет заказов, школа, детский сад, гипермаркет Лента, недалеко ТРЦ Планета, супермаркеты и т. п. - все необходимое для комфортного проживания! На первом этаже дома расположена ветклиника и аптека, что позволит позаботиться о вашем здоровье и здоровье ваших питомцев.
    Условия продажи: Чистая продажа. Обременений нет. Полное сопровождение сделки до момента получения ключей. Помощь в получении ипотеки. На все интересующие Вас вопросы готова ответить по телефону.

Актуальные новости про недвижку в нашем телеграм-канале: ПРОнедвижку

Похожие квартиры

По цене
По площади
По расположению