2-комн. квартира на ул. Шумяцкого, 4

Идентификатор: 481986   Дата обновления: 05-11-2025

213
Показать на карте

Дополнительная информация

  • Описание:
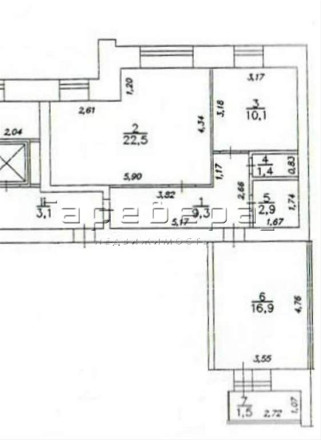
    Предлагаю купить уютную, просторную двухкомнатную квартиру в кирпичном доме с лоджией. Общая площадь составляет 61 кв. м. В квартире выполнен косметический ремонт. В зале расположены два окна, что создает светлую и комфортную атмосферу. Квартира теплая, с хорошей, интересной планировкой, что позволит вам удобно организовать пространство. Потолки побеленные, что придает свежий вид. Новым владельцам остается шкаф-купе, а так же кухонный гарнитур и вытяжка. Застекленная лоджия может стать отличным местом для отдыха или хранения вещнй.
    Санузел выполнен в кафеле, что обеспечивает легкость в уходе и стильный внешний вид. Он раздельный и просторный, что добавляет удобства в повседневной жизни.

    Инфраструктура:
    Дом находится в хорошем состоянии с наземной парковкой. В пяти минутах хотьбы находится торгово-офисный комплекс «Комсомольский». Во дворе дома находится д/с №316, а так же средняя школа №147. В шаговой доступности почтовое отделение, парикмахерская, прачечная, продуктовые магазины, аптеки, банк - все необходимое всегда под рукой.
    Отличная транспортная доступность позволяет быстро добраться до любой точки города.
    Условия продажи:
    Без долгов и обременений.
    Готова ответить на все интересующие Вас вопросы и организовать показ по договоренности! Это отличный вариант для комфортного проживания!

Актуальные новости про недвижку в нашем телеграм-канале: ПРОнедвижку

Похожие квартиры

По цене
По площади
По расположению