3-комн. квартира на ул. Петра Подзолкова, 5

Идентификатор: 482100   Дата обновления: 14-11-2025

406
Показать на карте

Дополнительная информация

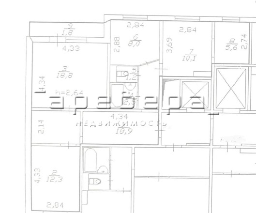
  • Описание: Предлагаю купить просторную трехкомнатную квартиру в современном панельном 16-ти этажном доме на 13 этаже. Большая, светлая квартира, с высокими потолками, просторная прихожая и коридор, ремонт от застройщика, балкон застеклен. Кухня 16 кв.м., разделена на две зоны, что позволяет удобно разместить столовую группу и рабочее пространство. Отличный выбор для большой семьи.
    Придомовая территория: Закрытая территория жилого комплекса, во дворе расположены детская и спортивная площадки.
    Инфраструктура: Развитая инфраструктура: рядом с домом расположены остановки общественного транспорта, кардиоцентр, ледовый дворец Арена Север, строится детская больница, аквапарк. В пешей доступности от дома находятся несколько детских садов, школа №157, ТЦ Планета, Гипер Лента. Очень развитая транспортная развязка.
    Условия продажи: Мы окажем полное сопровождение сделки от первого звонка до получения вами заветных ключей. Поможем с оформлением ипотеки на лучших условиях! ЗВОНИТЕ!

Актуальные новости про недвижку в нашем телеграм-канале: ПРОнедвижку

Похожие квартиры

По цене
По площади
По расположению