2-комн. квартира на ул. 2-я Ботаническая, 2

Идентификатор: 482076   Дата обновления: 24-11-2025

284
Показать на карте

Дополнительная информация

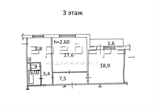
  • Описание: Предлагаю купить просторную двухкомнатную в тихой семейной локации Октябрьского района на ул. 2-я Ботаническая д. 2. Квартира на среднем 3 этаже пятиэтажного панельного дома.

    Главная особенность — планировка — обе комнаты очень большие, окна на спокойную улицу и парк. Квартире нужен лишь небольшой косметический ремонт. Прекрасно подойдёт чтобы заехать и жить.

    Двор дома большой и безопасный, под видеонаблюдением. Есть детская площадка. Рядом с домом всегда есть места для парковки. В пешей доступности расположены школа №3 и детский сад №206, супермаркет Магнит и Русский Разгуляйка, аптеки, а также скверы и лес для прогулок.

    Один собственник, обременений нет. Звоните, договоримся о просмотре!

Актуальные новости про недвижку в нашем телеграм-канале: ПРОнедвижку

Похожие квартиры

По цене
По площади