2-комн. квартира на ул. Вербная, 6

Идентификатор: 482801   Дата обновления: 19-01-2026

232
Показать на карте

Дополнительная информация

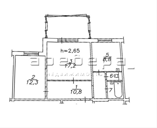
  • Описание: Пpодаeтcя 2-х комнатная квартира площaдью 53,1м?, в Октябрьском районе. Жилая площадь 29,5 м2. Имеется большой, просторный балкон. Окна выходят на солнечную сторону, противоположную дороги, а значит нет шума от нее. Из окна видно Николаевскую сопку. В квартире остается встроенный шкаф в прихожей, кухонный гарнитур. Квартира с косметическим ремонтом. В подъезде чисто, соседи не шумные. В доме имеется пассажирский лифт, просторные общие лестничные площадки.
    Придомовая территория: Во дворе всегда есть место под стоянку личного автотранспорта. Наличие детской площадки во дворе дома для комфортных прогулок.
    Инфраструктура: В доме есть пункты выдачи Wildberries, Оzon, аптека, салон красоты. Также рядом расположены супермаркеты «Командор», «Пятерочка» и многое другое. Через дороргу детский сад «Василек», школы №72 и №84. Рядом остановка автотранспорта.
    Условия продажи: Не упустите возможность стать владельцем этой замечательной квартиры, где вас ждет комфорт и удобство! Звоните прямо сейчас, чтобы записаться на просмотр!

Актуальные новости про недвижку в нашем телеграм-канале: ПРОнедвижку

Похожие квартиры

По цене
По площади
По расположению