3-комн. квартира на пр-т Свободный, 53

Идентификатор: 482838   Дата обновления: 03-03-2026

290
Показать на карте

Дополнительная информация

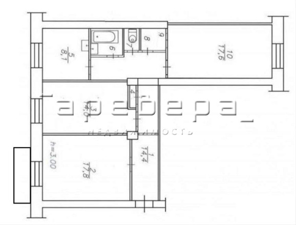
  • Описание: Предлагаю купить просторную трехкомнатную квартиру площадью 77,4 кв.м. с раздельными комнатами, расположенную на комфортном 4-ем этаже в 5-ти этажном кирпичном теплом доме планировки «сталинка» в Железнодорожном районе. Две отдельные спальни (14,0 кв.м и 17,6 кв.м), просторный зал (17,8 кв.м.), отдельная кухня (10 кв.м.) с !электроплитой!, большой коридор/прихожая, раздельный санузел, две гардеробные/кладовые и балкон делают эту квартиру очень комфортной для проживания большой дружной семьи. Квартира не обременена ремонтом, что позволяет вам сделать все по своему вкусу и желанию!
    Придомовая территория: Хороший большой тихий двор с озеленением и оборудованной современной детской площадкой. Есть парковочные места в достаточном количестве.
    Инфраструктура: Инфраструктура района очень развита. Напротив окон парк им. Гагарина. В соседнем дворе Средняя школа №21 и два детских сада (№8, "Симба»). В непосредственной близости находятся продуктовые магазины, аптеки, салоны красоты, кафе, рестораны и все необходимое для жизни. Рядом с домом автобусная остановка «Спорткомплекс Сибиряк» и «Школа (проспект Свободный)», через которые проходят 11 маршрутов, что позволяет вам уехать в любую точку города.
    Условия продажи: Чистая продажа, два взрослых собственника, вся цена в договоре, подходит под любую форму расчета: сертификаты, материнский капитал, ипотеку любого банка. Звоните и записывайтесь на просмотр, покажем в удобное для вас время!

Актуальные новости про недвижку в нашем телеграм-канале: ПРОнедвижку

Похожие квартиры

По цене
По площади
По расположению