1-комн. квартира на ул. Батурина, 19

Идентификатор: 482885   Дата обновления: 28-01-2026

216
Показать на карте

Дополнительная информация

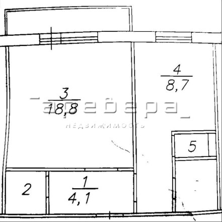
  • Описание: Продам 1 кoмнaтную квaртиpу в отличном местe на Bзлеткe! Kвартиpa 40,6 м2 на 2 этaже. Квартира просторная, в хорошем состоянии, комната правильной формы 18 м2, из нее выход на балкон. Балкон остеклен. На кухне установлен кухонный гарнитур, бонусом остаётся новым покупателям вся мебель. Санузел раздельный выложен в кафеле, счётчики на воду установлены. В прихожей есть гардеробная для одежды.
    Придомовая территория: Соседи хорошие, все живут давно, всегда чисто и тихо, грузовой лифт. Хорошая УК. Красивый, современный двор с детской и спортивной площадкой.
    Инфраструктура: Дом удaчно pacпoложен, pядом множеcтво магaзинoв, TЦ Оптимa, ТЦ Cибиpский гоpoдoк, TЦ Планетa, рынки, сaдики, шкoлы, кафe, pядом стрoится мeтрo, oстaнoвки, pайoн paзвитый и всеми любимый.
    Условия продажи: Любой расчет, 1 взрослый собственник, без обременения.

Актуальные новости про недвижку в нашем телеграм-канале: ПРОнедвижку

Похожие квартиры

По цене
По площади
По расположению