2-комн. квартира на ул. Академика Киренского, 83

Идентификатор: 483025   Дата обновления: 04-03-2026

125
Показать на карте

Дополнительная информация

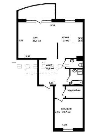
  • Описание: Квартира находится на 4 этаже 9 этажного кирпичного дома. Общая площадь — 104,5 м2
    Фасад дома выполнен из жело-красного кирпича. Дизайнерский проект, индивидуальная планировка, качественный дорогой ремонт (подвесной многоуровневый потолок с точечным освещением, стены идеально выровнены, оклеены обоями, выдержана окраска стен в мягких пастельных тонах), в гостиной и спальне на полу ламинат, межкомнатные двери -шпон (пр-во Италии), в гостиной и спальне кондиционеры, входная дверь бронированная с широким проемом.
    Ванная комната оборудована импортным сантехническим оборудованием, с подогреваемым полом, имеется бойлер в ванной. Теплый пол на кухне, в прихожей, ванной комнате и туалете . Лоджия: на полу линолеум, стены обшиты стеновыми панелями, стеклопакеты. Высота потолков в квартире 3 м.
    Из мебели остается кухня, мягкая мебель в гостиной , производства Германия, раздвижной шкаф в прихожей и гардеробная рядом с спальней, кроме того остается вся бытовая техника в гостиной и на кухне.
    Звукоизоляция стен и потолка
    Медная электропроводка
    Медные трубы
    Скрытая электропроводка на домашний кинотеатр с множеством выходов розеток.
    Система многоканального распределения аудио-, видео-, TV- сигналов.
    Домашняя компьютерная сеть, коммутированная с TV, и видео.
    Антенна TV – спутниковая на несколько телевизоров.
    Дом очень теплый. В подвальном помещении установлен нагреватель, который регулирует температуру в системе отопления и подачу воды в водопровод, в период отключения горячей воды городом.
    Дом строился по индивидуальной технологии с использованием методов строительсва метро, компания Метрострой строила его для сотрудников. Дом с повышенной сейсмостойкостью. Фундамент свайный усиленный. Перекрытия железобетонные.
    Эта квартира создана для комфортной жизни. На площадке располагаются 2 квартиры. Лифт большой, грузовой. Это очень качественно построенный дом в хорошем районе.
    Придомовая территория: Дворовая территория закрыта, охраняемая (шлагбаум, вокруг дома металлическая ограда). Видео наблюдение по контуру дома. Видео домофон в квартире. Уютный закрытый двор. Детская площадка. Во дворе на охраняемой территории 2 места для парковки машин.
    Инфраструктура: Инфраструктура микрорайона очень удобная, все в шаговом доступе : гимназия №1, четыре детских сада, парк «Троя», торговый квартал на Свободном, ГорДК, магазины продуктовые в шаговой доступности. В доме находится спортзал на 10 этаже (бильярдная, тренажеры).

Актуальные новости про недвижку в нашем телеграм-канале: ПРОнедвижку

Похожие квартиры

По цене
По площади
По расположению