4-комн. квартира на ул. Крайняя, 14а

Идентификатор: 483174   Дата обновления: 20-02-2026

160
Показать на карте

Дополнительная информация

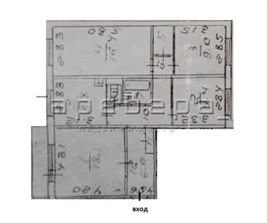
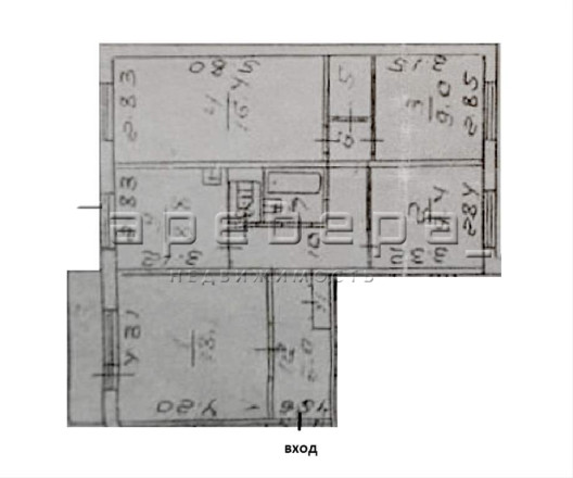
  • Описание: Продам 4-комнатную квартиру, с хорошим ремонтом, на 2 этаже 10-ти этажного панельного дома, комнаты раздельные, вид из окон на Енисей и во двор. Есть перепланировка, не узаконена.
    Инфраструктура: Остановка рядом с домом. Развитая инфраструктура района, в шаговой доступности все социально-значимые объекты: 2 гимназии, дет.сады, больницы и др. Рядом о.Татышев.
    Условия продажи: В квартире остается кухонный гарнитур, мебель по-договоренности. Собственники: 1 взрослый и 1 ребенок.

Актуальные новости про недвижку в нашем телеграм-канале: ПРОнедвижку

Похожие квартиры

По цене
По площади
По расположению