1-комн. квартира на ул. Высотная, 7

Идентификатор: 483874   Дата обновления: 28-04-2026

181
Показать на карте

Дополнительная информация

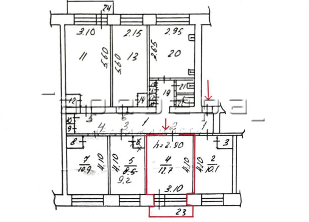
  • Описание: Продаётся светлая комната в кирпичной пятиэтажке
    Уютное жильё в хорошем районе с отличной транспортной доступностью
    Локация: остановка «ГорДК»
    Дом: кирпичный, 5 этажей
    Этаж: 5
    Площадь комнаты: 12,7 кв.м (доля в праве 16/104)
    Окно: ПВХ, с видом на улицу Высотную

    Что важно знать:
    Жилое состояние — можно заезжать и жить
    Чистая продажа — никаких скрытых нюансов
    Без обременений — сделка максимально прозрачная и безопасная
    Один взрослый собственник — минимум бюрократии при оформлении

    Кухня и санузел — общие (стандартная планировка секционного типа)

    Почему стоит посмотреть?
    Тихое и комфортное место без лишнего шума
    Кирпичный дом — тепло и хорошая звукоизоляция
    Рядом остановка «ГорДК» — удобно добираться куда угодно
    Подходит как для себя, так и для сдачи в аренду

    Есть покупатель. Внесён аванс.

Актуальные новости про недвижку в нашем телеграм-канале: ПРОнедвижку

Похожие квартиры

По цене
По площади
По расположению