Торговая площадь (магазин) на ул. Качинская

Идентификатор: 482354   Дата обновления: 03-12-2025

51
Показать на карте

Дополнительная информация

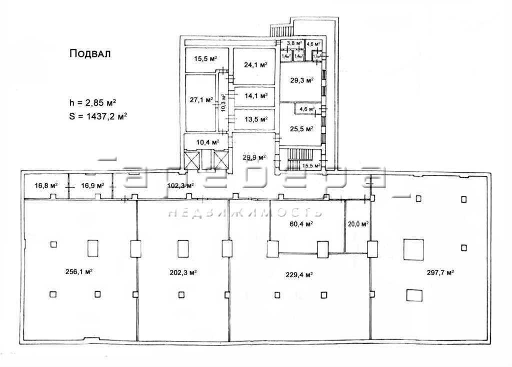
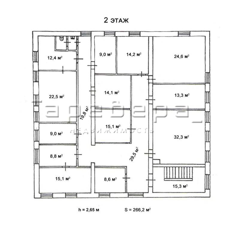
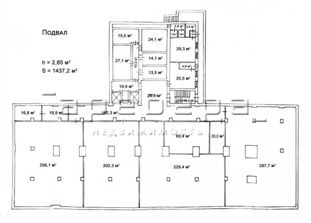
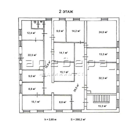
  • Описание: Предлагаем купить здание Центрального колхозного рынка в г.Красноярске на ул.Качинской д.64. Здание рынка капитальное кирпичное состоит из подвального ( S=1437,2 кв.м.), первого (S=3816,8 кв.м.) и второго( S=266,2 кв.м.) этажей. Общая площадь здания рынка 5520 кв.м. Все коммуникации : электричество 200кВт, водоснабжение, канализация и теплоснабжение- централизованные. Кроме того имеются временные сооружения- торговые павильоны общей площадью 1336,6 кв.м. В стоимость также входит земельный участок, на котором расположено здание общей площадью 17693 кв.м. Участок в собственности. Помещения сданы в аренду.

Актуальные новости про недвижку в нашем телеграм-канале: ПРОнедвижку

Похожие объекты коммерческой недвижимости

По цене
По площади