Нежилое помещение на пр-т Свободный

Идентификатор: 482941   Дата обновления: 02-02-2026

89
Показать на карте

Дополнительная информация

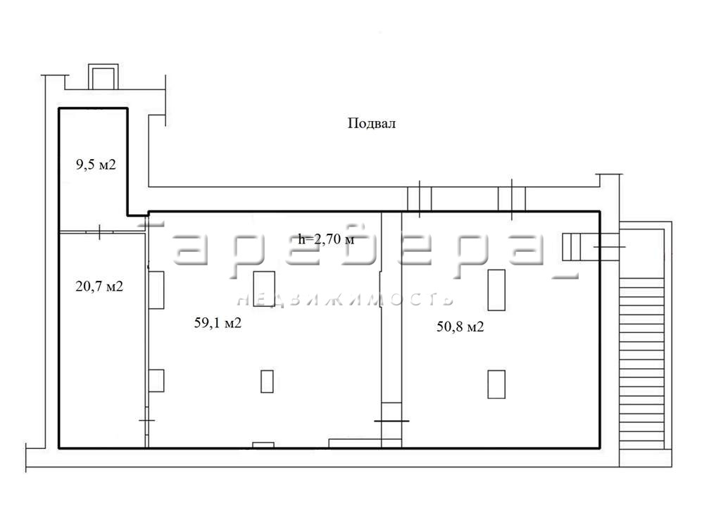
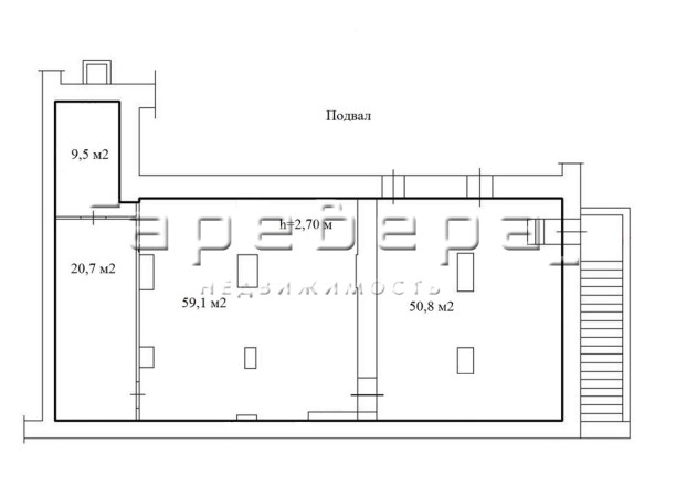
  • Описание: Предлагаем купить нежилое помещение, расположенное по адресу: г.Красноярск, пр.Свободный, д.53.
    Помещение размещено в подвальной части жилого дома.
    Общая площадь помещения 140,1 кв.м., которая включает в себя два зала 59,1 кв.м. и 50,8 кв.м, кабинет 20,7 кв.м. и подсобное помещение 9,5 кв.м.
    Высота потолков — 2,7 м
    . Удобная планировка. Отдельный вход с улицы. Возможна организация запасного выхода через подъезд.
    Инфраструктура: Первая линия. Хорошая транспортная и пешеходная доступность помещения с высоким пешеходным и автомобильным трафиком. Удобная транспортная развязка.
    Условия: Покупатель услуги агентства недвижимости не оплачивает.

Актуальные новости про недвижку в нашем телеграм-канале: ПРОнедвижку

Похожие объекты коммерческой недвижимости

По цене
По площади