1-комн. квартира на бул. Ботанический, 17

Идентификатор: 481107   Дата обновления: 15-04-2026

333
Показать на карте

Дополнительная информация

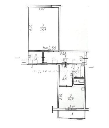
  • Описание: Предлагаю купить уютную и невероятно просторную однокомнатную квартиру в хорошем состоянии в Октябрьском районе (б-р Ботанический, д. 17).

    Уникальная планировка! Комната 24 кв.м. легко зонируется на спальную и гостиную зоны. Окна выходят на две стороны света, открывая прекрасные виды и наполняя пространство светом.

    Новым хозяевам остаётся в подарок стильный и новый кухонный гарнитур.

    В квартире оборудована полноценная гардеробная комната — больше не нужны громоздкие шкафы! Из кухни выход на застеклённую лоджию с панорамным остеклением.

    Окружение и инфраструктура: Идеальный выбор для семей! Во дворе — новая современная детская площадка. Прямо из окна виден Детский сад № 206, а в шаговой доступности — Средняя школа № 3. Микрорайон полностью сформирован: всё для комфортной жизни (магазины, аптеки, транспорт) находится рядом.

    Звоните, чтобы назначить просмотр! Квартира не задержится надолго.

Актуальные новости про недвижку в нашем телеграм-канале: ПРОнедвижку

Похожие квартиры

По цене
По площади