1-комн. квартира на пр-т им. газеты Красноярский Рабочий, 14а

Идентификатор: 481474   Дата обновления: 21-04-2026

982
Показать на карте

Дополнительная информация

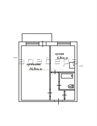
  • Описание: Предлагаю купить 1 комнатную квартиру площадью 30,6 кв.м. расположенную за Торговым комплексом КрасТЭЦ. Хорошая инвестиция как для сдачу в аренду, помесячно, посуточно, так и для собственного проживания.
    Дом панельный 1974 года постройки. Комфортный 2 этаж с балконом.
    Изначально он был построен как женское общежитие с полноценными однокомнатными квартирами с балконами.
    Квартира в хорошем состоянии, на полу линолеум, окна ПВХ, батареи чугунные.
    В коридоре расположена гардеробная, санузел совмещен. Произведена замена труб на полипропиленовые и установлены счетчики на воду.
    Планировка и фотографии полностью соответсвуют действительности.

    Развитая инфраструктура. В шаговой доступности мини-рынок, торговые центры «КрасТЭЦ», «Мега» и «Лемана Про». Неподалеку автовокзал «Восточный».

    Чистая продажа. Подходит под любой вид расчета. Быстрый выход на сделку.

    Есть покупатель. Внесён аванс.

Актуальные новости про недвижку в нашем телеграм-канале: ПРОнедвижку

Похожие квартиры

По цене
По площади
По расположению