2-комн. квартира на пр-т Металлургов, 30

Идентификатор: 482665   Дата обновления: 10-04-2026

470
Показать на карте

Дополнительная информация

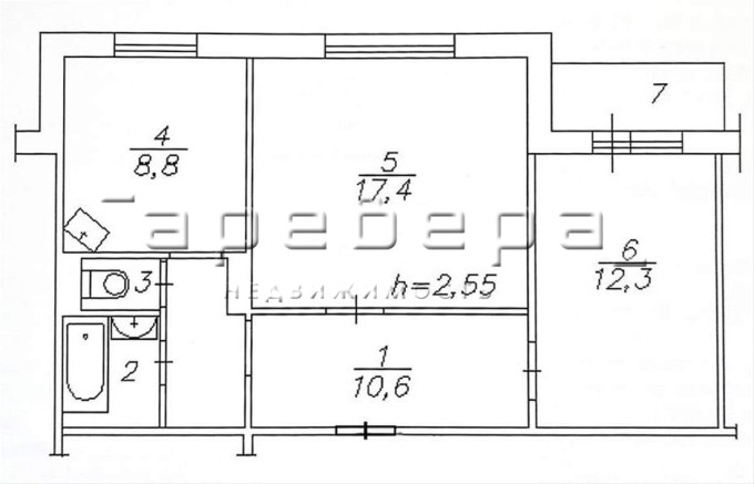
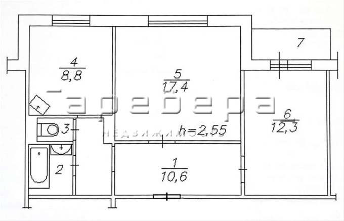
  • Описание: Предлагаю купить 2-комнатную квартиру. Отличный вариант для семьи, под аренду. Дом построен в 1975 году, панель. Этаж — 8/9. Общая площадь — 53 м2, жилая — 29,7 м2, кухня — 8,8 м2. Ремонт, косметический: линолеум, обои, конвекторы, санузел раздельный - кафель. В подъезде выполнен свежий ремонт, новый лифт (пассажирский). Окна выходят на южную сторону (кухня, зал, комната). Мебель и техника: по договоренности
    Придомовая территория: Большая детская площадка, много парковочных мест.
    Инфраструктура: Идеальное место для проживания экономически активного человека. В шаговой доступности детские сады №137, №218, №259 школы №1, №5, Поликлиника №14, магазины, остановка «Сергея Лазо».
    Условия продажи: Чистая продажа. Покупатель оплачивает услуги по юридическому сопровождению сделки

    Есть покупатель. Внесён аванс.

Актуальные новости про недвижку в нашем телеграм-канале: ПРОнедвижку

Похожие квартиры

По цене
По площади
По расположению