2-комн. квартира на ул. Гусарова, 76

Идентификатор: 484110   Дата обновления: 29-04-2026

106
Показать на карте

Дополнительная информация

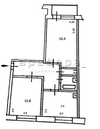
  • Описание: Предлагаю купить 3-комнатную квартиру на 3 этаже 5-этажного дома в Октябрьском районе (мкрн.Ветлужанка). Эта квартира - идеальный вариант для тех, кто ищет не просто «квадратные метры», а дом в удобной локации, с абсолютной близостью к образовательным учреждениям. Вы ищете квартиру, в которую можно заехать сегодня и не тратить месяцы на ремонт? Эта квартира в топовой локации Ветлужанки полностью готова к комфортной жизни. «Золотой» третий этаж, 1983 год постройки, и статус дома, который изначально строили для офицерского состава Министерства обороны РФ— вот что делает этот вариант лучшим. Качество, проверенное временем — бывший ведомственный дом Министерства обороны, что гарантирует повышенное качество материалов и строительства (серия 111-142). Панели толще, звукоизоляция лучше, а планировки продуманы для комфортной жизни семьи. Дом образцового порядка — во всем здании капитально отремонтированы инженерные сети и места общего пользования, сделан ремонт во входных группах из керамогранита. Фактический износ всего 14%! Идеальное состояние квартиры: евроремонт, который не надо переделывать. Полная готовность к жизни: светлые обои, натяжные потолки и прочный линолеум высокого класса создают атмосферу чистоты и уюта. Комфорт в деталях: Санузел отделан кафельной плиткой, стоят современные радиаторы отопления и стеклопакеты ПВХ. Вся электропроводка заменена на новую, современную. Надежные коммуникации: стоят новые полипропиленовые трубы водоснабжения и новая сантехника — вы забудете о протечках на годы. Уютный балкон: балкон аккуратно обшит брусом — это дополнительное пространство для отдыха или хранения.
    Инфраструктура: Локация: это настоящий оазис для семей с детьми. Детские сады рядом: детский сад №305 (Гусарова, 43), №322 (Гусарова, 31), №312 (Гусарова, 47) — в радиусе 5 минут. Образование рядом: Школа №133 (Гусарова, 16), Лицей №1 (Гусарова, 56 и Словцова, 14), Школа №95. Транспортная доступность: выход из дома — и сразу на остановку «Гусарова». Маршруты автобусов: 34, 35, 38, 82, 84, 85, 88, 91, 100, 136 и троллейбус 15 довезут вас в любую точку города без пересадок. Спорт и здоровье: закрытая дворовая территория оборудована современными детскими и спортивными площадками. Поликлиники, аптеки, МФЦ — всё в шаговой доступности.
    Условия продажи: Все документы готовы к сделке. Без обременений, один взрослый собственник. Поможем получить ипотеку на выгодных условиях. Звоните и записывайтесь на просмотр! Увидеть своими глазами все преимущества локации и оценить потенциал этой квартиры можно только лично.

    Есть покупатель. Внесён аванс.

Актуальные новости про недвижку в нашем телеграм-канале: ПРОнедвижку

Похожие квартиры

По цене
По площади
По расположению