Нежилое помещение на ул. Вильского

Идентификатор: 477556   Дата обновления: 24-10-2025

103
Показать на карте

Дополнительная информация

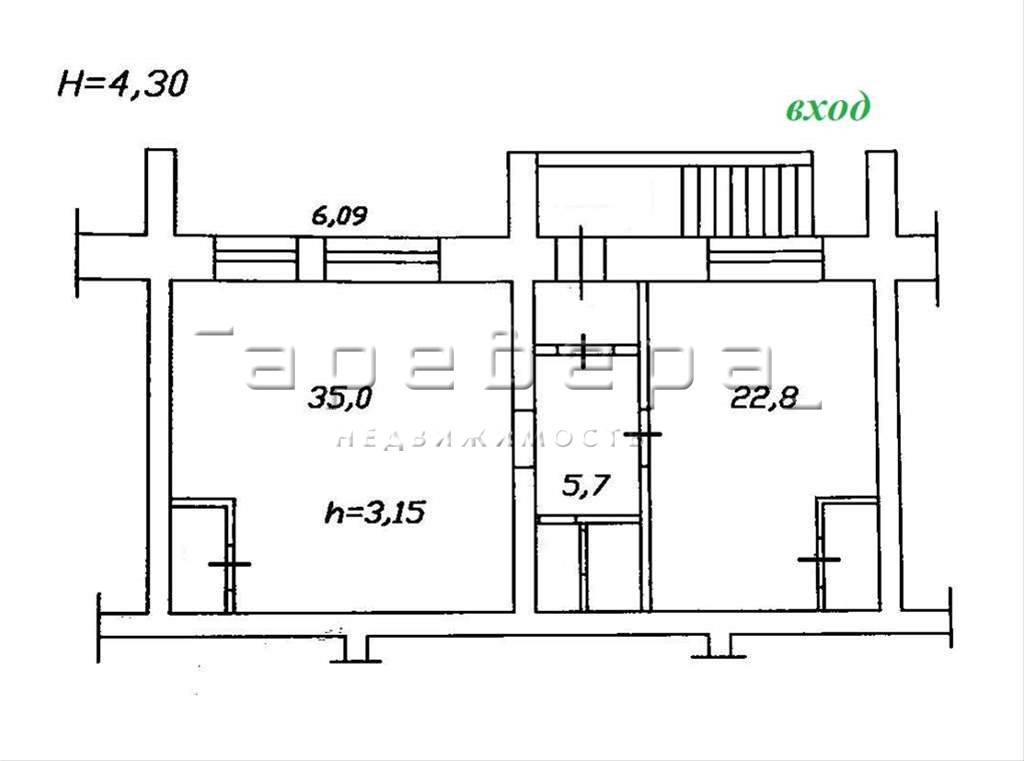
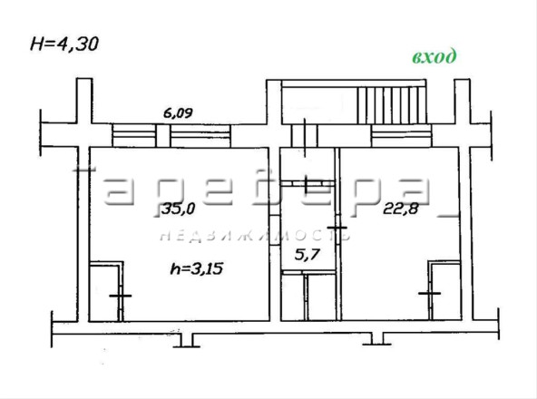
  • Описание: В густонаселённой локации предлагаем снять в аренду нежилое универсальное помещение площадью 72,7 кв.м. сдается в долгосрочную аренду.

    Новый дорогой ремонт, сделан только что: побелили потолки, покрасили стены, уложили кафель, полностью освежили помещение и осовременили для сдачи в аренду. Фотографии все актуальные.

    Напротив дома есть озеро, в 2025 году пройдет благоустройство его зоны, сделают дорожки, лежаки, скамеечки, места отдыха, место будет очень привлекательно для горожан, тем самым увеличит проходимость и трафик.

    Даже сейчас место очень проходное, первая линия от кольца, очень хорошо видно вывеску.
    Локация с очень плотной высокоэтажной застройкой, проходимость очень высокая, люди здесь часто заказывают доставку.

    Помещение полностью соответствует фотографиям.
    Также приложила схему помещения.
    Есть охрана. Мощность 25кВт. Электричество 380Вт. Арендатор дополнительно оплачивает переменные расходы - воду, свет по счетчикам.

Актуальные новости про недвижку в нашем телеграм-канале: ПРОнедвижку

Похожие объекты коммерческой недвижимости

По цене
По площади
По расположению