1-комн. квартира на пр-т 60 лет Образования СССР, 31

Идентификатор: 482300   Дата обновления: 14-04-2026

562
Показать на карте

Дополнительная информация

  • Описание: Не ищите стандартную квартиру. Ищите пространство под ваш образ жизни. Эта квартира на 1 этаже — для тех, кто не любит лифты и ждать, кто ценит время и свободу.

    Почему стоит посмотреть:

    Чистые документы — один собственник, прямая продажа.

    Любой расчёт — ипотека, маткапитал, сертификаты.

    Свобода перепланировки — главное преимущество первого этажа.

    Никакого чужого ремонта — только ваши идеи.

    Развитая инфраструктура — всё в шаговой доступности.

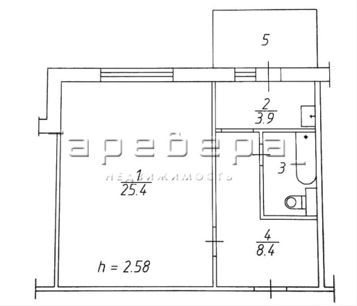
    Холл-прихожая почти 8 м. Прямоугольная форма без лишних углов, удобные проходы в комнату, на кухню и в санузел. Это идеальная зона для полноценной гардеробной, хранения велосипедов, коляски или даже небольшого кабинета.

    Главная комната 25,4м2 правильной квадратной формы. Солнечная сторона — мягкий свет весь день. Хотите сделать кухню-гостиную из большой комнаты? Возможно!

    Совмещённый санузел. Сейчас это функциональное, но устаревшее пространство. Но для нас это преимущество: вы не переплачиваете за чужой ремонт. Бонус первого этажа — возможность без сложных согласований заменить всю разводку водопровода и канализации, сделать новую стяжку и гидроизоляцию. Это «чистый лист» для современного, безопасного и стильного санузла, который вы создадите для себя.

    Кухня 3,9 м. Компактно, но это не приговор. Не любите готовить? Отлично! Здесь место для кофемашины и завтраков, а обедайте в кафе через дорогу - их тут действительно много. Или создать приватную зону кабинета.

    Балкон законный, проект дома. Да, сейчас он выглядит не идеально — но это легко исправить. Вы можете утеплить, остеклить заново, сделать дополнительной зоной. Юридически это ваша собственность, и вы решаете, каким ему быть!


    Инфраструктура: Дом 1994 года постройки, расположен в самом сердце Солнечного, на проспекте 60 лет Образования СССР 31. Рядом — торговый центр «Командор», продуктовые павильоны, остановки с тёплыми павильонами, МФЦ, детская библиотека. За домом — широкая дворовая территория с газонами и деревьями, подземная парковка. Инфраструктура, транспортная доступность и удобство двора — это то, что остаётся с вами на годы.
    Условия продажи: Один взрослый собственник, продажа прямая, без цепочек. Подходит ипотека, материнский капитал, сертификаты.

Актуальные новости про недвижку в нашем телеграм-канале: ПРОнедвижку

Похожие квартиры

По цене
По площади
По расположению