1-комн. квартира на ул. Судостроительная, 27д

Идентификатор: 483976   Дата обновления: 27-04-2026

153
Показать на карте

Дополнительная информация

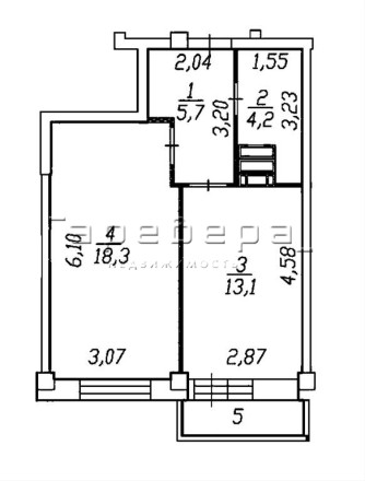
  • Описание: Продается уютная однокомнатная квартира в престижном районе Красноярска — Пашенный, ул. Судостроительная, д. 27Д, на 19 этаже 25-этажного монолитно-кирпичного дома, введенного в эксплуатацию в 2019 году.

    Основные характеристики:

    • Общая площадь: 41,3 м2
    • Общая комната: просторная 18,2 м2, светлая и уютная, подойдёт для отдыха и работы
    • Кухня: 13,01 м2 — удачной формы с выходом на балкон, что позволит расставить удобно мебель
    • Прихожая: оборудована вместительным встроенным шкафом для удобного хранения вещей.
    * Санузел: Совмещённый, выполнен в стильных сине-серых тонах, создающих атмосферу спокойствия и гармонии.
    • Балкон: Застекленный с видом на город и горы, создает дополнительное пространство для отдыха и хранения вещей.
    • Ремонт: состояние жилое, но требуется лёгкая косметика
    • Планировка: функциональная, рациональное использование пространства
    • Мебель: распродаётся. На момент покупки квартиры может что-то остаться и по желанию нового владельца останется либо вывезется за счёт продавца.

    Придомовая территория: Внутри двора: детская площадка, парковочные места
    Инфраструктура: Образовательные школы, государственные и частные детские сады, школы и центры дополнительного образования, детская и взрослая поликлиники, магазины, аптеки.
    Транспортная доступность: остановки общественного транспорта в 5 минутах ходьбы, быстрая развязка для выезда на основные магистрали (Николаевский мост, Ярыгинский проезд, Коммунальный мост).
    В районе — развитая социальная и коммерческая инфраструктура
    Условия продажи: • В собственности более 5 лет, один взрослый собственник
    • Нет обременений, свободная продажа
    • Подходит под любой вид расчета — наличные, ипотека
    • Полный пакет документов и юридическое сопровождение
    • Быстрый выход на сделку, помощь в оформлении ипотеки

    Почему именно эта квартира?
    Это отличное решение для жизни, инвестиций или сдачи в аренду — удачное расположение, современное состояние, развитая инфраструктура и хорошая транспортная доступность делают это предложение очень привлекательным.

Актуальные новости про недвижку в нашем телеграм-канале: ПРОнедвижку

Похожие квартиры

По цене
По площади
По расположению