6-комн. квартира на ул. Академика Киренского, 5а

Идентификатор: 482959   Дата обновления: 08-05-2026

291
Показать на карте

Дополнительная информация

  • Описание:Цена снижена на 2 млн. руб. на неделю!!!
    Уважаемые коллеги, данная квартира продается по системе партнерских продаж, звоните)

    Готовы рассмотреть варианты рассрочки и обмена.
    Продается эксклюзивная квартира-особняк с настоящим камином, сауной и панорамными видами на горы и Бобровый Лог.
    Это место — идеальный баланс между динамикой города и спокойствием загородной жизни. Здесь можно наслаждаться свежим воздухом, уединением с природой, наблюдать восходы из окна или из джакузи, сходить на пробежку в лес, а через 15 минут быть в центре событий. Это решение для большой семьи, ценящей уединение, здоровье и особый стиль. Что актуально для Красноярска с его частым режимом черного неба.
    Кирпичный дом 2005 г постройки находится в березовой роще Студгородка с освещенными тропинками для прогулок или пробежек, особенно с питомцем. Большая территория дома огорожена по периметру, установлено видео наблюдение, ворота для въезда во двор, и калитка открывающиеся по звонку, а большое количество парковочных мест позволяет легко поставить несколько а/м. Рядом инфраструктура СФУ, гимназия, детский сад. Для спорта в пешей доступности есть бассейн, беговые дорожки, лыжная база, футбольная площадка, каток и др. Во дворе несколько детских спортивных площадок: футбольная, баскетбольная и детский городок.
    Преимуществом является действующий камин с живым огнем, настоящая финская сауна, джакузи в спальне, гриль-зона на кухне.
    Уникальная планировка и дизайн в просторной гостиной-кухне 90 кв.м. с 5-метровыми мансардными потолками. Дизайн интерьера сделан в замковом стиле с фресками ручной работы и мебелью из массива натурального дерева со встроенной техникой премиум-класса. Отдельная зона с грилем и мощной вытяжкой позволит вам легко приготовить вкусные шашлыки.
    Центром притяжения является камин с живым огнем, это большая редкость для квартир.
    Зона отдыха - настоящая финская сауна с мягкой зоной.
    В квартире несколько спален: главная спальня с джакузи и ванной комнатой и гардеробной с панорамным видом. Вторая спальня с балконом, и третью комнату можно переобустроить как спальню, в настоящее время там овальный кабинет с эркерным окном.

    Придомовая территория:Удобство в том, что все санузлы расположены на каждом этаже и с теплыми полами, душевыми кабинами, биде; в каждом - испанская мебель и сантехника. Есть постирочная, две гардеробные и кладовая. Во всех комнатах установлены японские кондиционеры, балконы остеклены.
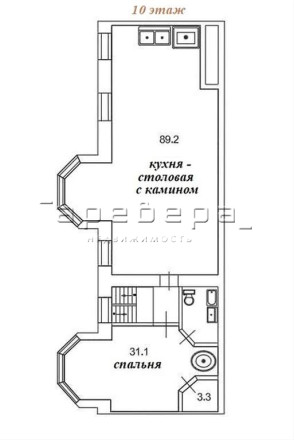
    Планировка квартиры выставлена отдельными фотографиями.
    Комфорт, благодаря толстым кирпичным стенам, обеспечивающим превосходную звукоизоляцию (между этажами и от соседей) и идеальный микроклимат: зимой тепло, летом прохладно.
    Из квартиры можно созерцать великолепные виды - на Енисей, горы, Бобровый лог и вечерние огни города, которыми можно любоваться даже из джакузи в одной из спален. Окна выходят на солнечную сторону — точно на юг.
    Таких предложений на рынке Красноярска действительно нет. Это готовая концепция жизни премиум-класса.

    Звоните, чтобы назначить просмотр и оценить всю магию этого места лично!

Актуальные новости про недвижку в нашем телеграм-канале: ПРОнедвижку

Похожие квартиры

По цене
По площади
По расположению