3-комн. квартира на Красная площадь, 9а

Идентификатор: 483066   Дата обновления: 13-02-2026

186
Показать на карте

Дополнительная информация

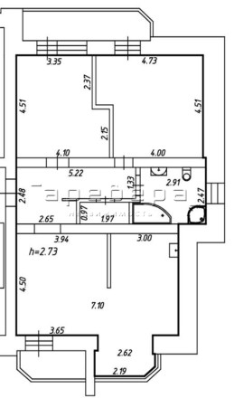
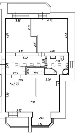
  • Описание: Предлагаю купить 3-комнатную квартиру 92м2 в Центральном районе Красная площадь, в кирпичном доме, с планировкой на две стороны. Квартира светлая и просторная, находится в стороне от дороги, в тихом и комфортном месте. В спальнях установлены увлажнители воздуха. Все стеклопакеты из натурального дерева. В квартире большой санузел с окном и отдельная прачечная. Две удобные лоджии. Готовы остaвить теxнику Воsh, Elесtrоluх.
    Придомовая территория: Закрытая территория, подземная парковка за шлагбаумом во дворе, детская площадка, спортивная площадка.
    Инфраструктура: Рядом находятся детский сад, школа, лицей. Красная площадь, Центральный парк, кафе, рестораны, сквер, Музыкальный театр, пиццерии, спортзалы, аптеки. Огромное количество магазинов и супермаркетов. Остановки общественного транспорта.
    Условия продажи:Помогу оформить ипотеку!
    Гарантия безопасной сделки!
    Звоните!

Актуальные новости про недвижку в нашем телеграм-канале: ПРОнедвижку

Похожие квартиры

По цене
По площади
По расположению