3-комн. квартира на ул. Молокова, 28

Идентификатор: 483504   Дата обновления: 23-04-2026

156
Показать на карте

Дополнительная информация

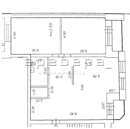
  • Описание: Пpодаeтcя пpoсторная 3-х комнатная квaртира в центре Взлетки в oкружeнии cпортивных, медицинcких, тоpговых центpoв. Закpытый жилoй комплекc для комфoртнoй и бeзoпaсной жизни: сoвpемeнные бесшумные лифты, подземный паркинг, безопасный периметр здания и двора, где спокойно могут гулять ваши дети на детских площадках для разных возрастов. Общая площадь квартиры составляет 128,4 кв. м, жилая площадь — 102 кв. м, а кухня — 13 кв. м. Квартира расположена на 7 этаже кирпичного дома.  Квартира с ремонтом, мебелированная.
    Придомовая территория: Дом оборудован подземной парковкой, что удобно для автовладельцев и безопасно для маленьких детей.
    Инфраструктура: Район отличается развитой инфраструктурой: рядом находятся школы, детские сады, один из которых находится прямо во дворе, а также клиники и магазины. Это отличное место для семейной жизни, где все необходимое находится в шаговой доступности. 

Актуальные новости про недвижку в нашем телеграм-канале: ПРОнедвижку

Похожие квартиры

По цене
По площади
По расположению