1-комн. квартира на ул. 26 Бакинских Комиссаров, 26

Идентификатор: 483737   Дата обновления: 27-03-2026

129
Показать на карте

Дополнительная информация

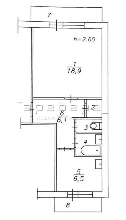
  • Описание: Предлагаю купить 1-комнатную квартиру с двумя балконами в развитой локации Ленинского района. Квартира располагается на комфортном 8 этаже на ул. 26 Бакинских Комиссаров 26. Ремонт в квартире неактуальный, но есть удобная планировка на две стороны, с местом под гардероб и раздельным санузлом. Один балкон застеклён и выходит на улицу, второй во двор. Дружелюбные и тихие соседи!
    Удобная транспортная развязка, легко добраться в любую точку города. Во дворе большое количество парковочных мест, вы всегда найдёте место для парковки.

    В шаговой доступности находятся школа №16, детский сад №187, остановки общественного транспорта, Дом спорта Спартак, сквер Солнечный, где можно с пользой провести время, а также все необходимые магазины для комфортного проживания.

    Один взрослый собственник, без обременений. Звоните и записывайтесь на показ!

Актуальные новости про недвижку в нашем телеграм-канале: ПРОнедвижку

Похожие квартиры

По цене
По площади
По расположению