1-комн. квартира В Емельяновский, пгт. Емельяново

Идентификатор: 481493   Дата обновления: 25-05-2026

522
Показать на карте

Дополнительная информация

  • Описание: Продам 1 комнатную квартиру в Центре поселка Емельяново.
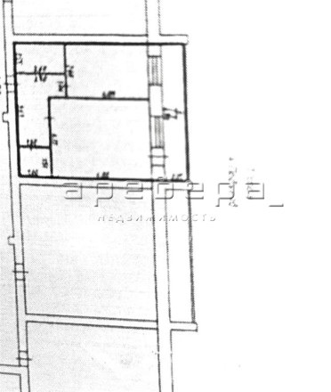
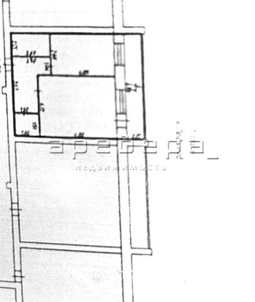
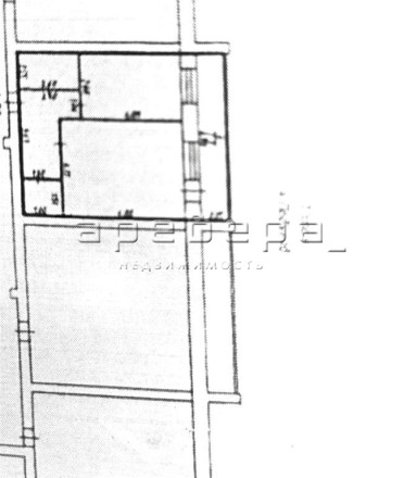
    Квартира очень грамотно сделана в двух комн. евростудию с отдельным спальным местом и большой гостиной.
    Высота 1-го этажа от фунтдамента 4м. Поэтому первый этаж очень высоко находится. Квартира в доме из чистого кирпича 2013гп.
    В квартире собственники выполнили качественный ремонт. Натяжные потолки с люстрами. Пол-немецкий ламинат светло-серого оттенка. Стены обои под покраску светло-серые. Проводка-медная. Радиаторы немецкие плоские (конвекторного типа). Окна пластиковые. Сан узел импортный кафель в уровне до потолка с новым сан фаянсом. Дверь в сан.узел и кладовую-шпон со стеклянными вставками. Входная дверь металлическая сейфовая с шумоизоляцией. Квартира светлая и теплая. Высота потолков =2,65м.
    Особое внимание -лоджия. Она большая удобная 7м. Утеплена. Потолок закрыт панелью. Пол утеплен, закрыт линолеумом. Обшита лоджия деревянной рейкой, защищена рейка корабельным лаком.
    Около дома открытая парковка. Отопление центральное (нет отключений горячей воды).
    Инфраструктура: Повторюсь, это самый Центр поселка. Регулярное движение автобусов муниципальных (до Красноярска всего 15км). Администрация города, полиция, прокуратура, поликлиника, больница, банки-шаговая доступность.
    Прекрасные спортивные сооружения и обьекты(бассейн, беговые дорожки, тренажеры, спортивный зал) отличное футбольное поле. Замечательный Дворец культуры с кинотеатром и творческими кружками.
    Так как Первый этаж высокий, то имеются нежилые помещения в полуцоколе (салон красоты, парикмахерская, зоомагазин, хозяйственные магазины, продовольственный магазин Пятерочка, Бристоль, цветочный магазин). Для комфортной жизни рядом с городом созданы все условия!

Актуальные новости про недвижку в нашем телеграм-канале: ПРОнедвижку

Похожие квартиры

По цене
По площади