2-комн. квартира на пер. Светлогорский, 23

Идентификатор: 484112   Дата обновления: 08-05-2026

90
Показать на карте

Дополнительная информация

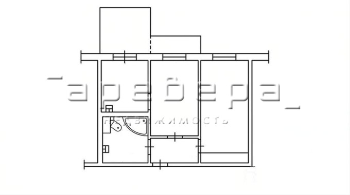
  • Описание: Продается квартира, которая перевернет ваше представление о комфорте. В ней нет «балконов для сушки белья» — здесь есть дополнительные жилые квадраты. Это результат грамотной перепланировки, которая полностью узаконена.

    Главные преимущества:
    Балкон утеплены. Утеплен, подключены радиаторы отопления и теплый пол. Вы обедаете в просторной столовой, а не в тесной кухне.
    Санузел увеличен – теперь это просторное помещение, где можно развернуться.
    Новая планировка – продуманное зонирование без лишних коридоров.

    Техника и умные решения:
    • Сенсорные выключатели света – удобно и современно
    • Кондиционер – климат-контроль круглый год
    • Бойлер – горячая вода всегда, даже летом
    • Встроенный сейф – для документов и ценностей (идеально для спокойствия)

    Состояние: ремонт выполнен в спокойных, ненавязчивых тонах (светлый интерьер, в который не нужно вкладываться). Квартира в отличном состоянии – просто берите ключи и живите.

    Юридическая чистота:
    Один собственник – никаких долей, разводов, наследственных споров
    Без долгов и обременений – чистые коммунальные платежи, не в залоге
    Перепланировки узаконены – БТИ не придерется, ипотека/материнский капитал оформляются без проблем

    Покажу в удобное для вас время. Звоните или пишите. Быстрый выход на сделку.

Актуальные новости про недвижку в нашем телеграм-канале: ПРОнедвижку

Похожие квартиры

По цене
По площади
По расположению