Нежилое помещение на ул. Петра Подзолкова

Идентификатор: 481785   Дата обновления: 29-10-2025

123
Показать на карте

Дополнительная информация

  • Описание: По документам - НЕЖИЛОЕ!

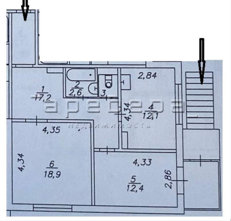
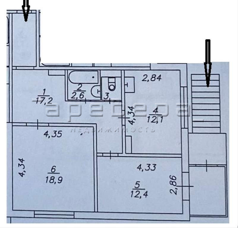
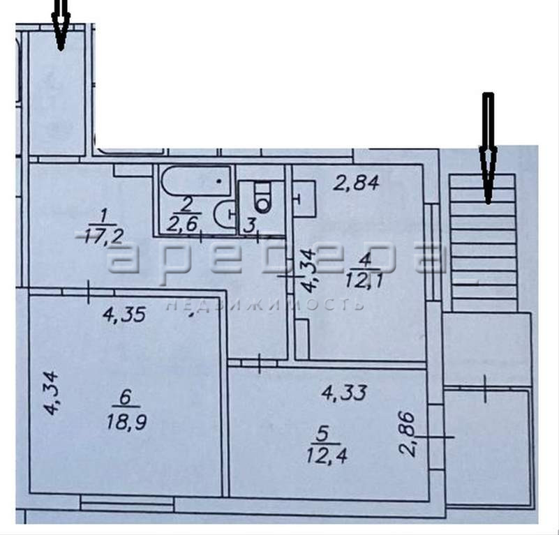
    Продается нежилое помещение, общей площадью 65.кв.м.
    Адрес: ул.Петра Подзолкова 5Б

    В продаже коммерческое помещение 65 кв.м. расположенное на первой линии в ЖК “Светлый”, граничит с ЖК “Преображенский”. Дом панельный, 16 этажей, построен в 2016 году застройщиком КБС. Нежилое помещение располагается на первом этаже и имеет два входа. Отдельный вход обеспечит удобство для вашего бизнеса. Без перепланировок, три комнаты - см.план, ремонт соответсвует фото. В настоящее время в помещении располагается действующая долгосрочная аренда (детский сад).
    Придомовая территория: Закрытая придомовая территория. Открытая наземная парковка. Видеонаблюдение.
    Инфраструктура: Активно развивающийся район, через дорогу строится аквапарк. В шаговой доступности Кадастровая палата\Кардиоцентр\Планета.
    Условия: Без обременений.

Актуальные новости про недвижку в нашем телеграм-канале: ПРОнедвижку

Похожие объекты коммерческой недвижимости

По цене
По площади
По расположению