Дом в районе п. Солонцы

Идентификатор: 477833   Дата обновления: 07-04-2026

66
Показать на карте

Дополнительная информация

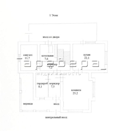
  • Описание: Предлагаю Вашему вниманию двухэтажный дом в пригороде Красноярска, в Солонцах, для проживания большой дружной семьи. Дом площадью 230 кв.м., на 15 сотках земли, с качественным современным ремонтом, где все продумано до мелочей, для вашего комфорта и безопасности. На первом этаже: вместительная гардеробная комната, просторная кухня с с выходом на террасу, большая комната и санузел. С внутреннего входа расположена котельная. На втором этаже: четыре просторных спальни, одна из них с выходом на большой балкон и вместительный санузел. Ремонт в доме качественный и современный: окна ПВХ, натяжные потолки с зонированным освещением, на полу на первом этаже — ламинат, в коридоре — керамогранит, в кухне частично ламинат и керамогранит, на втором этаже — линолеум, санузлы — кафель, качественные межкомнатные и входная двери. На территории участка расположены: гараж и баня. Гараж из шлакоблоков, размером 6*11, с подвалом. Баня — оцилиндрованное бревно, размером 6*5, с комнатой отдыха и парилкой. Технические характеристики дома: фундамент ленточный монолитный, бетон марки м-500 мостовой 1 этаж — сибит газобетон 2 этаж — брус 150*150 Балки перекрытия — 200*100 Крыша — металлочерепица Отопление — комбинированный котел «Зота» (уголь, пилетты), электрокотел, Электричество — центральное Холодное водоснабжение — центральное Горячее водоснабжение — бойлер на 200 литров Канализация — септик, 3 кольца На территории участка есть курятник, теплица, все насаждения, зона отдыха. По периметру участок огорожен забором. Звоните, покажу в удобное для Вас время!
    Условия: "Чистая" продажа.

Актуальные новости про недвижку в нашем телеграм-канале: ПРОнедвижку

Похожие дома и коттеджи

По цене
По площади