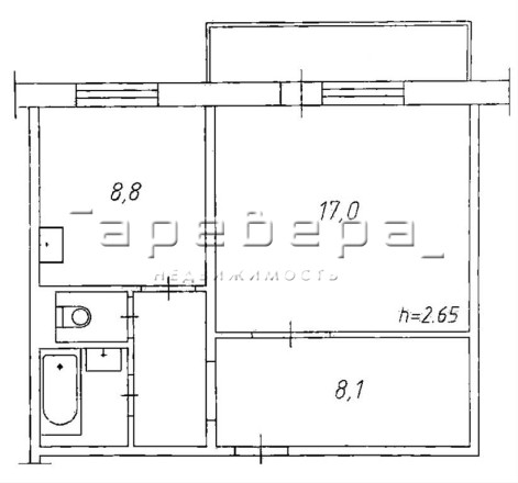
1-комн. квартира на ул. Линейная, 76

Идентификатор: 483171   Дата обновления: 29-04-2026

58
Показать на карте

Дополнительная информация

  • Описание: Сдается однокомнатная квартира на долгий срок. Пустая, после косметического ремонта.
    Придомовая территория: Облагороженный двор. Современная детская и спортивная площадки.
    Инфраструктура: В шаговой доступности ТК "Зеленый". Школа, детский сад.
    Условия аренды: Без животных. Рассмотрим семью с детьми. Счетчики оплачиваются отдельно. Залог 10 000 р. Услуги агентства 60 %.

Актуальные новости про недвижку в нашем телеграм-канале: ПРОнедвижку

Похожие квартиры

По цене
По площади
По расположению