Готовый бизнес на ул. Советская

Идентификатор: 480173   Дата обновления: 21-01-2026

129
Показать на карте

Дополнительная информация

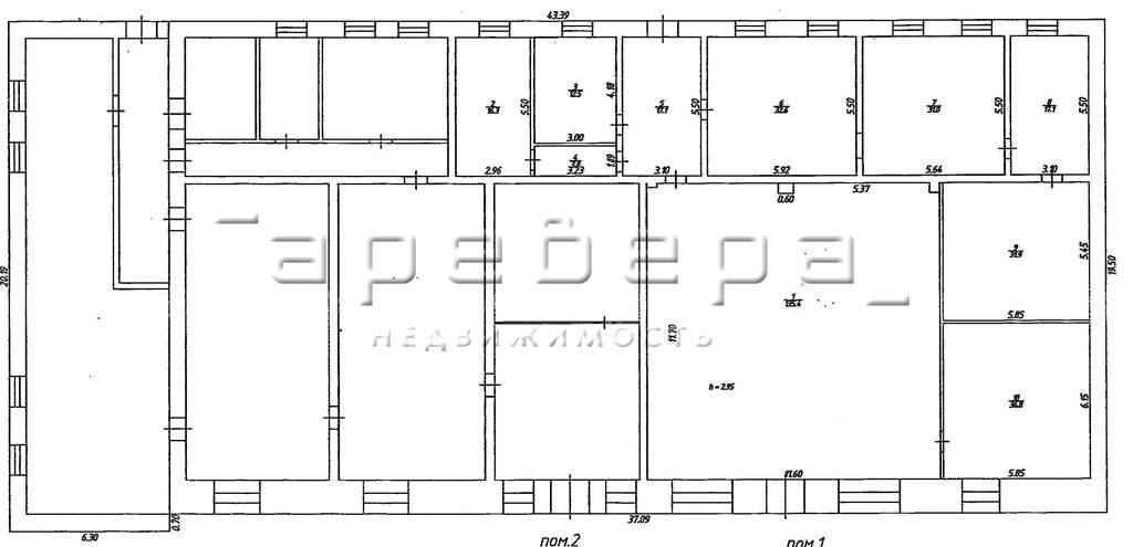
  • Описание: Продается готовый бизнес — магазин и пекарня общей площадью 791 кв.м., расположенные в уютном поселке Роща. Объект оснащен собственной котельной, что обеспечивает автономное отопление и значительную экономию на коммунальных услугах. Помещения просторные и функциональные, идеально подходят для развития торговой и производственной деятельности.
    Условия: Отличное предложение для тех, кто ищет стабильный бизнес с уже налаженным процессом и удобным расположением. Возможен торг. Готовы предоставить дополнительную информацию по запросу.

Актуальные новости про недвижку в нашем телеграм-канале: ПРОнедвижку

Похожие объекты коммерческой недвижимости

По цене
По площади
По расположению