Дом, Октябрьский район

Идентификатор: 474967   Дата обновления: 29-01-2026

30
Показать на карте

Дополнительная информация

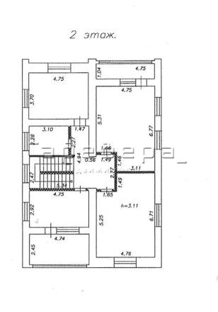
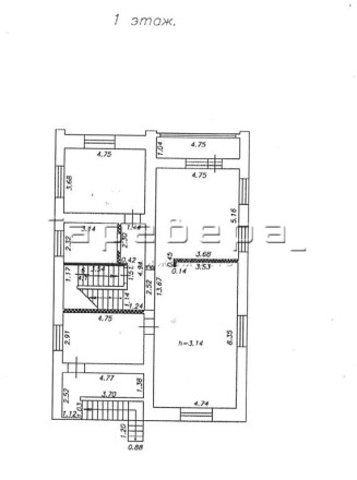
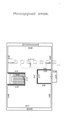
  • Описание: Предлагается жилой дом на участке в черте города. Участок ровный. В дом заведена вода, подведён септик, отопление центральное. Все окна ПВХ. Двухместный гараж. Улица жилая с адекватными соседями, обеспечивающими спокойствие и безопасность, асфальтированный подъезд до дома.
    Инфраструктура: Экологически чистый район с развитой инфраструктурой: Развитая сеть промтоварных, продовольственных магазинов. Остановки общественного транспорта расположены в шаговой доступности.
    Условия: Чистая продажа. Один взрослый собственник. Документы проверены юристом, готовы к сделке. Оперативно организую показ. Звоните, отвечу на все интересующие Вас вопросы с 9.00 до 20.00 часов.

Актуальные новости про недвижку в нашем телеграм-канале: ПРОнедвижку

Похожие дома и коттеджи

По цене
По площади