3-комн. квартира на ул. Алексеева, 115

Идентификатор: 480098   Дата обновления: 19-09-2025

694
Показать на карте

Дополнительная информация

  • Описание: Продается 3-комнатная квартира на "Взлетке"!
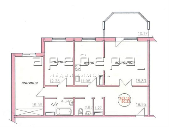
    Общая площадь 87 м? + лоджия 10 м?
    Адрес: г. Красноярск, ул. Алексеева, д. 115

    Предлагаем вам уникальную возможность приобрести уютную и просторную 3-комнатную квартиру в одном из самых комфортных районов города.

    Ключевые особенности:
    - Удобная планировка:
    - Большой коридор с прямым входом в светлую гостиную
    - Из гостиной выход на просторную лоджию (10 м?)
    - Приватная зона с двумя спальнями, удаленными от входной группы

    - Отдельный санузел и ванная комната:
    - Санузел (3 м?) и ванная комната (4,34 м?) отделены друг от друга для максимального удобства

    - Качество и комфорт:
    - Квартира в хорошем состоянии с ремонтом из качественных материалов
    - На полу в коридоре и гостиной — ламинат, в спальнях и кухне — пробковое покрытие
    - Стены выровнены и оклеены обоями, санузел и ванная полностью в кафеле

    - Вся мебель и техника остаются: Вы можете сразу заехать и наслаждаться комфортом!

    Идеально для:
    - Семей с детьми
    - Людей, ценящих комфорт
    - Инвесторов — квартира всегда интересна для сдачи в аренду

    Инфраструктура района:
    - Школа №150 и детский сад №76 в шаговой доступности
    - Рядом находятся: ТРЦ "Планета", ТЦ "Лента", магазины, тренажерный зал Колизей и Nrgym
    - Удобная транспортная развязка с автобусными остановками на 10 маршрутов

    Двор и управление:
    - Облагороженный двор с детской площадкой и разными насаждениями
    - Видеонаблюдение и наземная парковка
    - Хорошая управляющая компания, заботящаяся о состоянии подъезда и двора

    Условия покупки:
    Квартиру можно приобрести за наличный расчет, используя средства ипотеки или сертификата. Наши специалисты помогут подобрать более выгодные условия ипотеки, чем в банке.

    Звоните прямо сейчас, давайте договоримся о времени просмотра

Актуальные новости про недвижку в нашем телеграм-канале: ПРОнедвижку

Похожие квартиры

По цене
По площади
По расположению