2-комн. квартира В Емельяновский, п. Солонцы

Идентификатор: 481260   Дата обновления: 20-04-2026

541
Показать на карте

Дополнительная информация

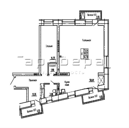
  • Описание: Ищете просторную квартиру в уютном малоэтажном доме? У нас есть идеальный вариант для вас! Предлагаю оригинальную двухкомнатную квартиру площадью 91,6 м? на 6-м этаже кирпичного дома с индивидуальной планировкой и уникальными преимуществами, по адресу пос. Солонцы, ул. Кирпичная, 19. Огромная гостиная площадью 50 м? — место для семейных вечеров и встреч с друзьями или использовать как творческую мастерскую (обилие света, большое пространство). Три застекленных балкона, чтобы наслаждаться видом в любое время года. Два санузла, один из которых с окном — комфорт и практичность в каждой детали. Высота потолков 2,7 м обеспечивает ощущение простора. Получистовая отделка — возможность создать интерьер своей мечты.
    Придомовая территория: Уютный двор с детской площадкой и парковкой.
    Инфраструктура: Дом расположен на берегу реки и имеет собственную облагороженную набережную для прогулок и отдыха. Удобная транспортная развязка и вся необходимая инфраструктура рядом: школа, детский сад, администрация, МФЦ и ТЦ «Метро».
    Условия продажи: Не упустите возможность стать владельцем этой уникальной квартиры! Звоните прямо сейчас, чтобы записаться на просмотр и узнать все подробности!

Актуальные новости про недвижку в нашем телеграм-канале: ПРОнедвижку

Похожие квартиры

По цене
По площади
По расположению