2-комн. квартира на ул. Ленина, 121

Идентификатор: 482753   Дата обновления: 18-05-2026

286
Показать на карте

Дополнительная информация

  • Описание:
    Квартира под нежилое с готовым ремонтом!!! Предлагаем к покупке 2-комнатную квартиру в историческом Центре города.

    Квартира расположена в районе сквера Дзержинского, ул.Ленина, 121

    Дом пятиэтажный кирпичный. Закрытая дворовая территория.

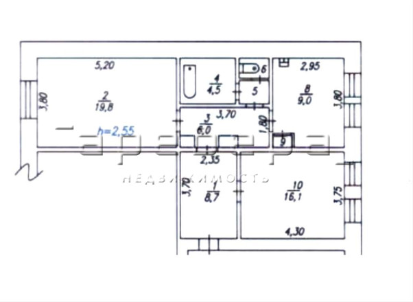
    Общая площадь квартиры 68.9 кв.м.
    Квартира без обременений, не в залоге.

Актуальные новости про недвижку в нашем телеграм-канале: ПРОнедвижку

Похожие квартиры

По цене
По площади
По расположению