Офис на ул. Горького

Идентификатор: 481747   Дата обновления: 14-10-2025

111
Показать на карте

Дополнительная информация

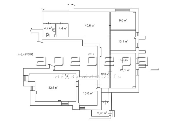
  • Описание: Предлагаю купить офисное помещение в центре г.Красноярска. Первый этаж в кирпичном доме на пересечении ул.Горького и А.Лебедевой, первая линия. Отдельный вход. Небольшая парковка, закрытая шлагбаумом. Внутри помещения практически нет несущих стен, что позволяет, при необходимости , переделать планировку под нового собственника. Высокие потолки 3,55 м. Электричество 8 кВт.
    Условия: Отлично подойдет для офиса небольшой компании, клиники и т. д. Объект интересен также для сдачи в аренду как целиком, так и по кабинетам в отдельности. Один собственник, быстрое оформление. Покажу в любое удобное для Вас время.

Актуальные новости про недвижку в нашем телеграм-канале: ПРОнедвижку

Похожие объекты коммерческой недвижимости

По цене
По площади