Земля на ул. Славы

Идентификатор: 483936   Дата обновления: 14-04-2026

13
Показать на карте

Дополнительная информация

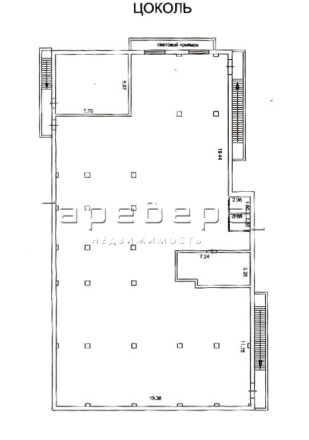
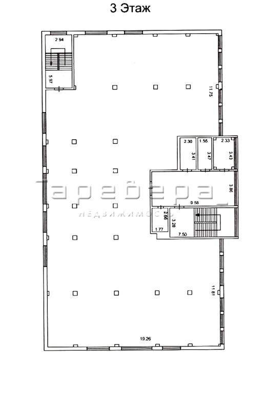
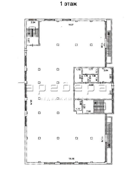
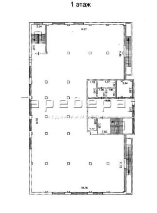
  • Описание: Предлагаю купить отдельно стоящее здание в густонаселенном с отличным трафиком микрорайоне Солнечный. Объект общей площадью 2903 кв.м, 4 уровня на земельном участке 25,8 соток в собственности. С 1 по 3 этаж есть лифт. На каждом этаже санузел. Здание новое 6 лет.

    Коммуникации: водоснабжение - центральное, канализация - септик, отопление автономное робот-котел на обслуживании у организации, электричество 260 кВт.

    Здание полностью сдано в аренду (ГАБ). ПРОСМОТР ТОЛЬКО ПО ПРЕДВАРИТЕЛЬНОМУ СОГЛАСОВАНИЮ.

Актуальные новости про недвижку в нашем телеграм-канале: ПРОнедвижку

Похожие объекты коммерческой недвижимости

По цене
По площади