Здание на ул. Абытаевская

Идентификатор: 465390   Дата обновления: 22-01-2026

151
Показать на карте

Дополнительная информация

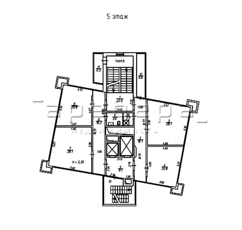
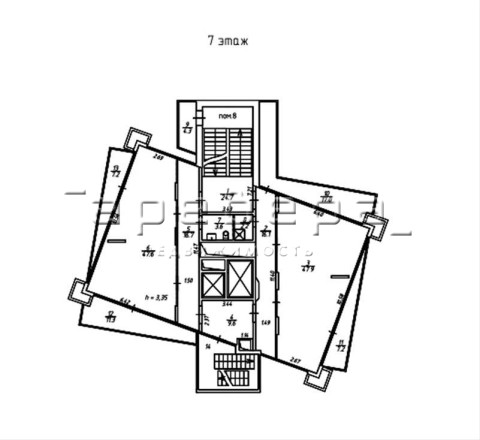
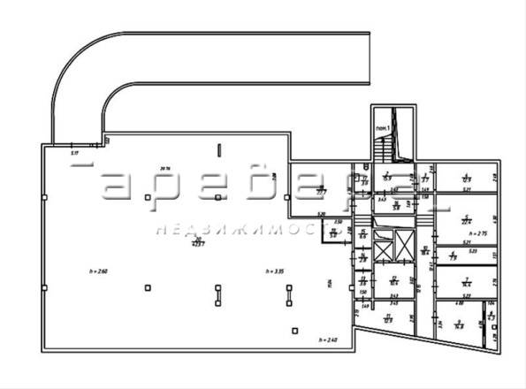
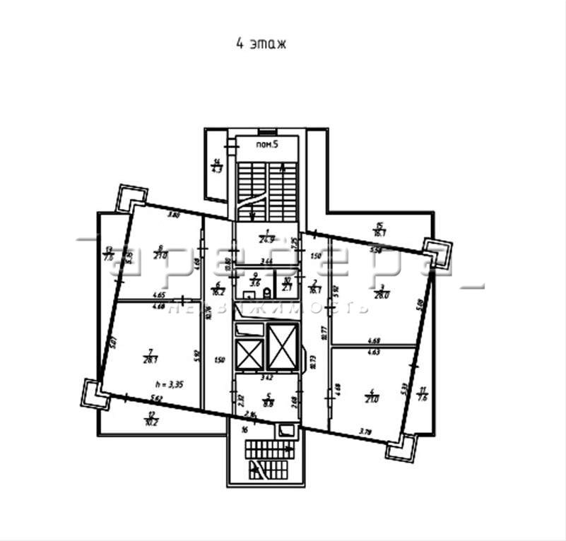
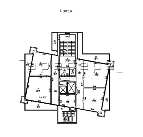
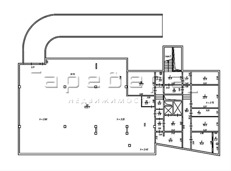
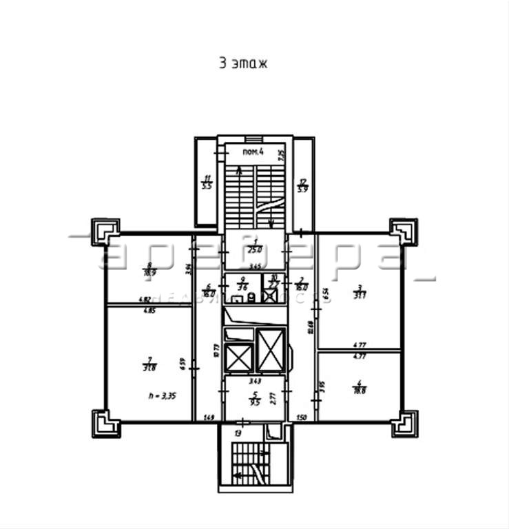
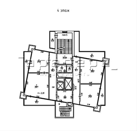
  • Описание: Продаю отдельно стоящее 8-ми этажное здание с оригинальным проектом в Центральном районе г. Красноярска, в близости от основных транспортных артерий города (ул. 9 Мая – ул. Шахтеров - ул. Караульная - ул. 2-я Брянская). Закрытая облагороженная территория, кованный забор, шлагбаум. Здание построено из монолитного железобетона с навесным фасадом и тонированным витражным остеклением, с техническим этажом и подземным паркингом на 13 машиномест. Помещения на этажах свободной планировки, 34 кабинета. Здание введено в эксплуатацию, обеспечено системами центрального отопления, водоснабжения, канализации, вентиляции, охранной, пожарной сигнализации и оповещения, 2-мя лифтами. Внутренняя отделка получистовая, выполнена подготовка всех поверхностей под финишное декорирование. На техническом этаже расположено машинное отделение лифтов и помещение системы приточно - вытяжной вентиляции.
    Площадь земельного участка – 1652 кв.м;
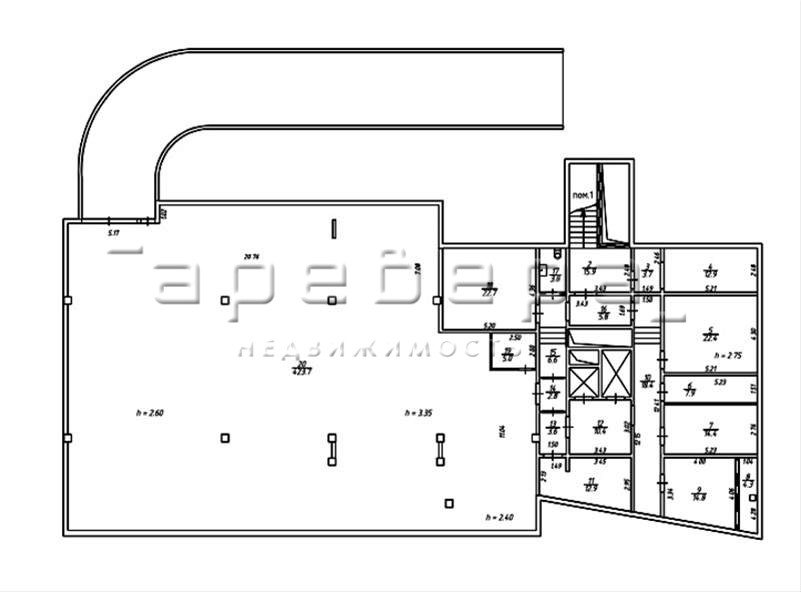
    Общая площадь объекта 2415,2 кв.м;
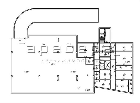
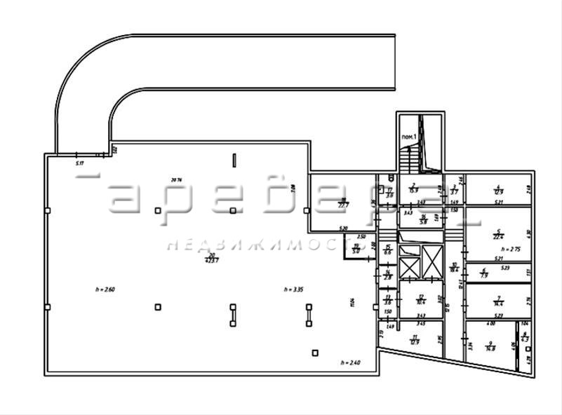
    Подвал — подземная парковка на 13 машиномест. S общ.=619,4 кв.м;
    Высота потолков 3,35 м2
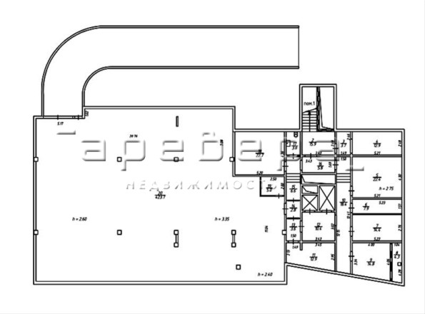
    1 этаж — S общ.=248,5 кв.м;
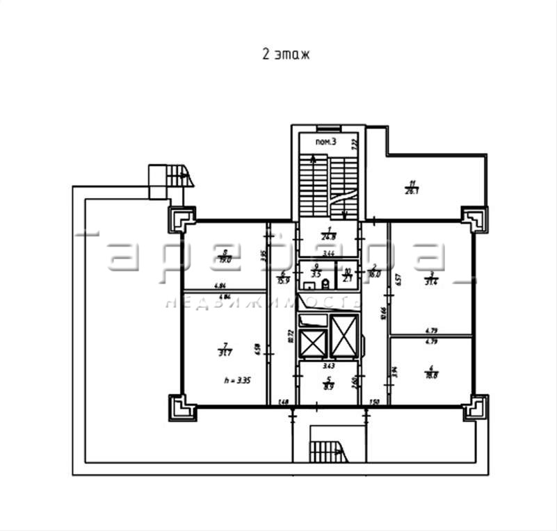
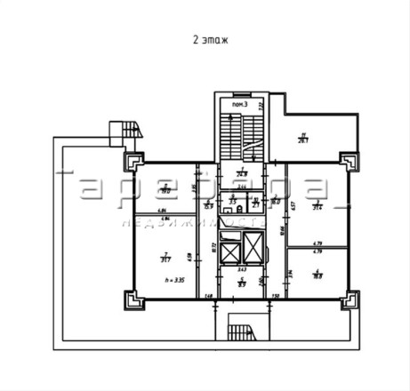
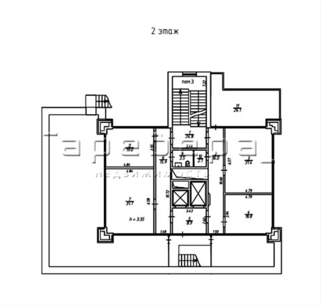
    2 этаж — S общ.=198,2 кв.м,
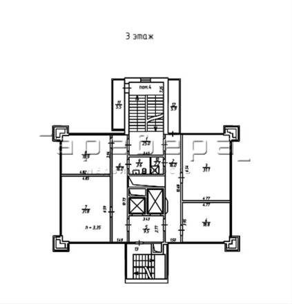
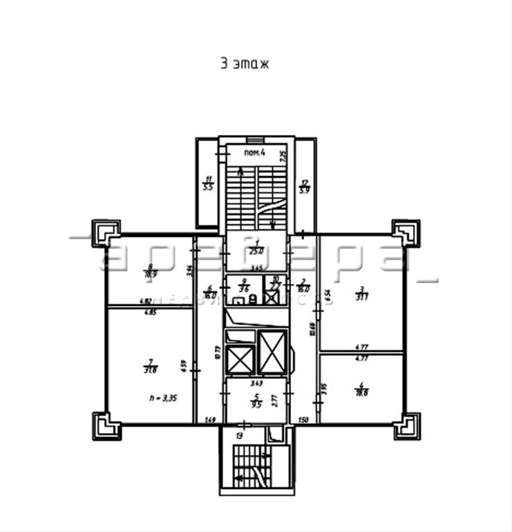
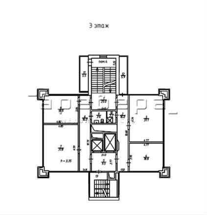
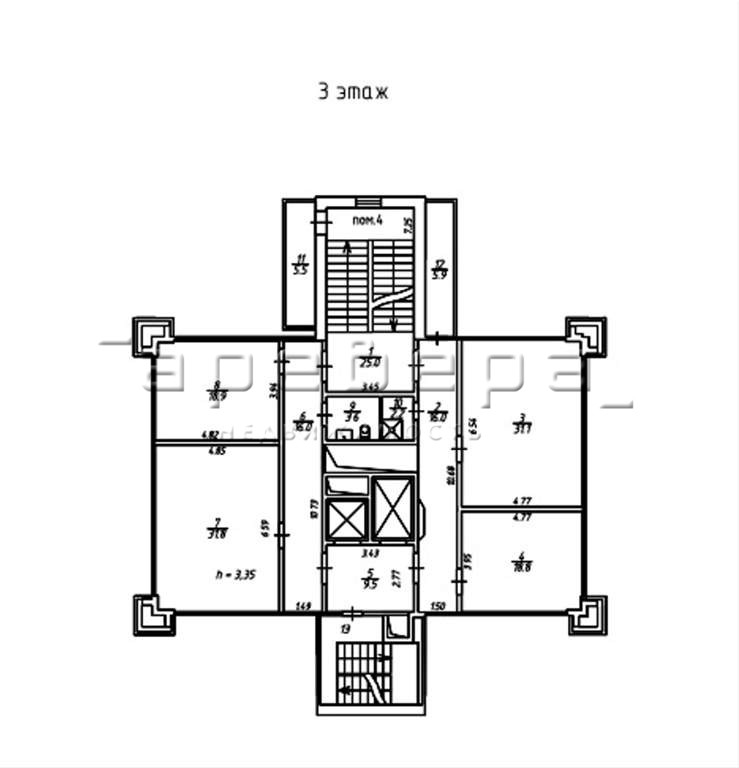
    3 этаж — S общ.=186,9 кв.м,
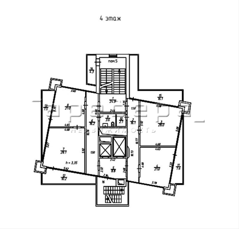
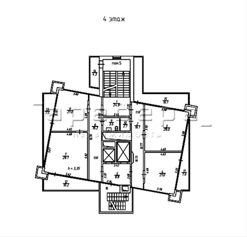
    4 этаж — S общ.=218,4 кв.м,
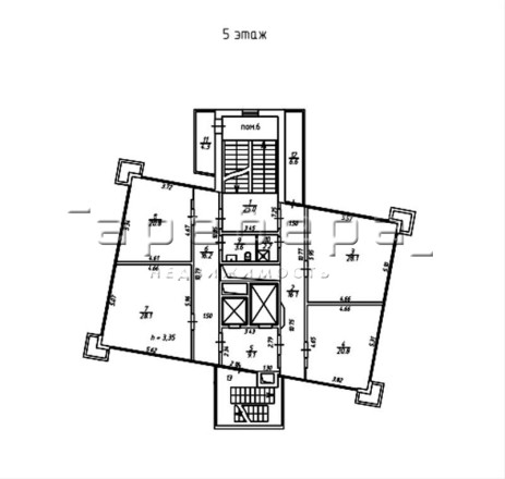
    5 этаж — S общ.=183,7 кв.м,
    6 этаж — S общ.=183,4 кв.м.
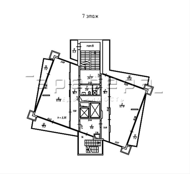
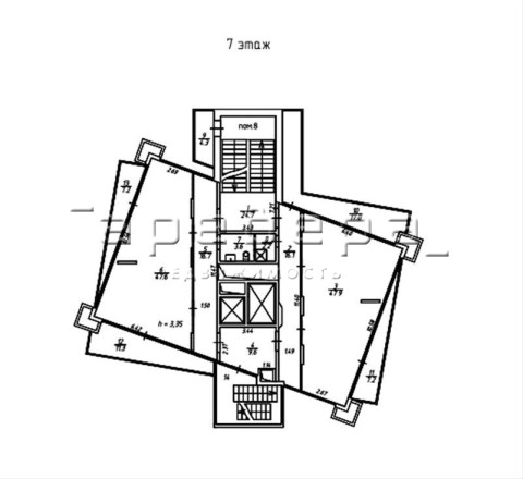
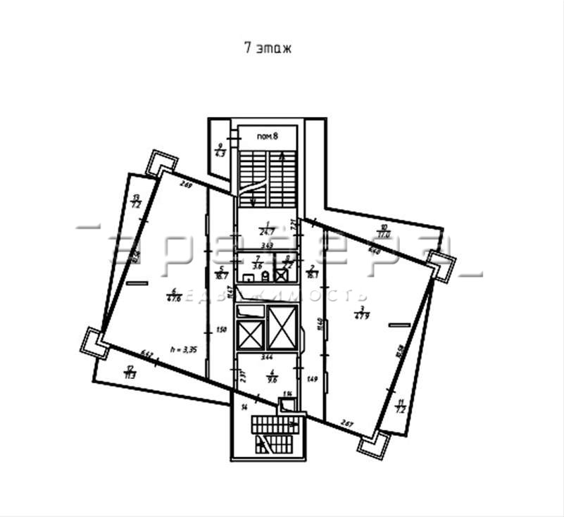
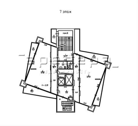
    7 этаж — S общ.=218,4 кв.м.
    8 этаж — S общ.=181,1 кв.м.
    Технический этаж - S общ.=88,1 кв.м.
    Условия: Возможен торг! Полное юридическое сопровождение и экспертиза документов! Никаких комиссионных по покупке оплачивать не нужно! Звоните, договоримся о времени просмотра!

Актуальные новости про недвижку в нашем телеграм-канале: ПРОнедвижку

Похожие объекты коммерческой недвижимости

По цене
По площади