4-комн. квартира на Северное шоссе, 48а

Идентификатор: 482367   Дата обновления: 24-02-2026

498
Показать на карте

Дополнительная информация

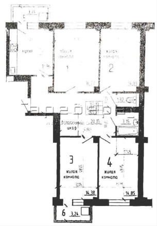
  • Описание: Предлагаю купить 4-комнатную квартиру. Отличный вариант для семьи. Дом сдан в 2022 году, кирпич. Этаж — 5/9. Общая площадь — 99,3 м2, жилая — 60,9 м2, кухня — 11,96 м2. Ремонт, косметический: линолеум, обои, стальные панельные радиаторы, санузел раздельный. В подъезде 1 лифт (грузовой). Окна выходят на западную (кухня, зал, комната) и восточную сторону во двор(2 комнаты). Мебель и техника: по договоренности
    Придомовая территория: Большая детская площадка, много парковочных мест.
    Инфраструктура: Идеальное место для проживания экономически активного человека. В шаговой доступности магазины.
    Условия продажи: Альтернативная продажа. Покупатель оплачивает услуги по юридическому сопровождению сделки

Актуальные новости про недвижку в нашем телеграм-канале: ПРОнедвижку

Похожие квартиры

По цене
По площади
По расположению