Нежилое помещение на ул. Маерчака

Идентификатор: 481472   Дата обновления: 05-05-2026

237
Показать на карте

Дополнительная информация

  • Описание: Предлагаем купить универсальное нежилое помещение, расположенное пo aдресу: г. Kpаcнояpcк, ул. Маерчака, зд.38.

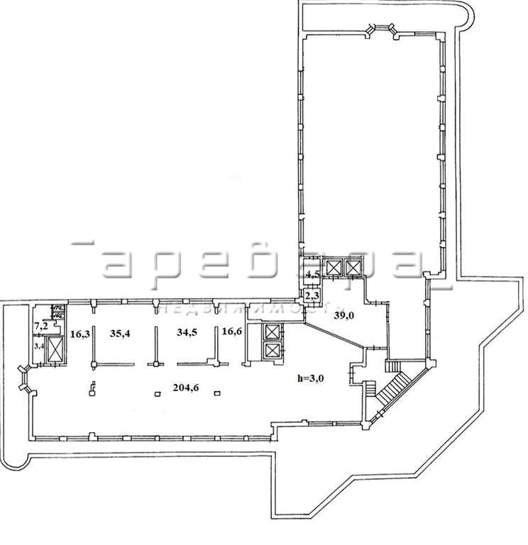
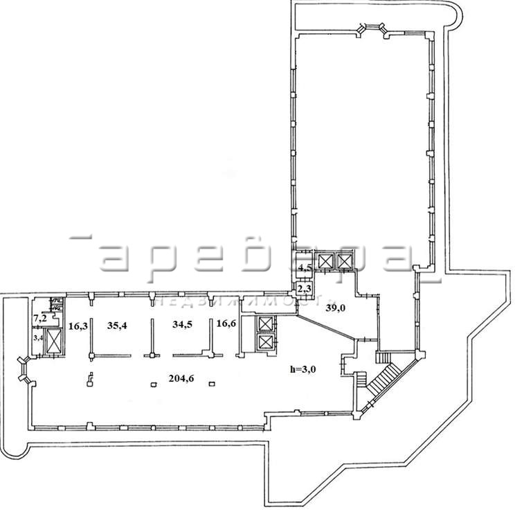
    ХАРАКТЕРИСТИКИ: общая площадь помещения 423,5 кв.м,, занимает часть 2-го этажа административного здания.
    Планировка помещения колонного типа, что позволяет организовать пространство по своему усмотрению (покупателю можем предложить готовый проект перепланировки помещения).
    Высота потолков — 3м.
    Бетонные межэтажные перекрытия.
    Четыре лифта.
    Вход с первого этажа офисного центра.
    Централизованные коммуникации.
    Парковка.

    ВОЗМОЖНОСТИ ДЛЯ БИЗНЕСА

    1. РАСПОЛОЖЕНИЕ.
    Помещение расположено в центральной части Железнодорожного района г.Красноярска, на пересечении основных магистральных улиц — пр.Свободный и ул.Маерчака. Первая линия, высокий автомобильный и пешеходный трафик. Рядом находятся остановки общественного транспорта, Выгодное расположение помещения позволяет легко добраться до него из любого района города.

    2. ПОТЕНЦИАЛ ДЛЯ РАЗВИТИЯ.
    2.1. Возможные направления использования: фитнес-центр, медицинский центр, гостиница, клиентский офис, заведения общественного питания, шоу-рум, образовательные учреждения, др.
    2.2. Окупаемость инвестиций, как арендного бизнеса — 8 лет

    Возможна покупка всего второго этажа здания.
    Указанные коммерческие условия не являются публичной офертой и могут подлежать пересмотру.
    Комиссия для инвестора — 0%

Актуальные новости про недвижку в нашем телеграм-канале: ПРОнедвижку

Похожие объекты коммерческой недвижимости

По цене
По площади
По расположению