Нежилое помещение на пер. Телевизорный

Идентификатор: 472252   Дата обновления: 25-02-2026

630
Показать на карте

Дополнительная информация

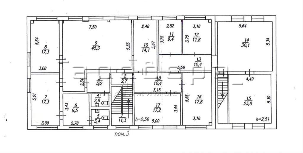
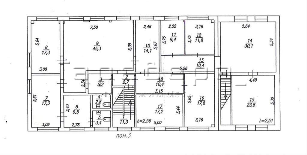
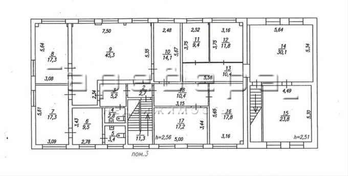
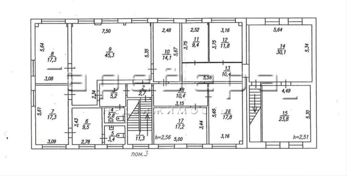
  • Описание: Прекрасная возможность иметь свой бизнес в собственном здании, расположенном по адресу: пер. Телевизорный, 9а

    В продаже двухэтажное отдельно стоящее здание 541 кв.м., расположенное на собственном земельном участке 6.8 соток.

    Свет- 30 киловатт

    Холодная вода городская

    Отопление-центральное

    Кабинетная система, состояние дополнительных вложений не требует.

    Годовое обслуживание совсем небольшое.


    Придомовая территория: Есть парковочные места.
    Условия: НДС включен в стоимость

Актуальные новости про недвижку в нашем телеграм-канале: ПРОнедвижку

Похожие объекты коммерческой недвижимости

По цене
По площади