Нежилое помещение на ул. Перенсона

Идентификатор: 481751   Дата обновления: 14-10-2025

157
Показать на карте

Дополнительная информация

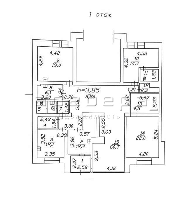
  • Описание: Предлагаем снять нежилое помещение под любой вид деятельности в самом центре исторического центра города Красноярска. Отличное расположение, рядом театр Оперы и Балета, Русгидро, отели Ibis, Novotel, Красноярск, а так же кафе и рестораны. Через дорогу платная парковка. Вблизи набережная Енисея, прогулочная зона. Помещение подойдет под сферу услуг, торговлю и другие виды деятельности. Витражные окна, высокие потолки.

Актуальные новости про недвижку в нашем телеграм-канале: ПРОнедвижку

Похожие объекты коммерческой недвижимости

По цене
По площади