Нежилое помещение на ул. Мира

Идентификатор: 482208   Дата обновления: 21-11-2025

370
Показать на карте

Дополнительная информация

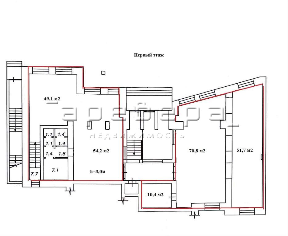
  • Описание: Предлагаем снять в аренду торгово-офисное помещение, расположенное по адресу: г.Красноярск, пр.Мира, 122. Общая площадь 270 м2 (есть возможность арендовать частями по 135 м2). Хорошее состояние: керамогранит на полу, подвесные потолки, стены окрашены. Два просторных зала, подсобные помещения. Высокие потолки — 3,0 м. Хорошее освещение. Кондиционеры во всех помещениях. Центральный вход с пр. Мира, запасной выход во двор.
    Инфраструктура: Место с отличной локацией, в котором сосредоточены бутики современной модной одежды, аксессуаров премиального сегмента и другие заведения премиального и среднего класса. Первая линия. Активный пешеходный трафик. Высокий транспортный поток. Удобная транспортная развязка.
    Условия: Дополнительно оплачиваются расходы за свет и воду. Услуги агентства недвижимости арендатор не оплачивает.

Актуальные новости про недвижку в нашем телеграм-канале: ПРОнедвижку

Похожие объекты коммерческой недвижимости

По цене
По площади
По расположению