Склад (бокс) на ул. Борисевича

Идентификатор: 481752   Дата обновления: 13-04-2026

299
Показать на карте

Дополнительная информация

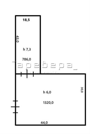
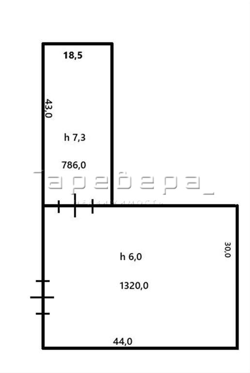
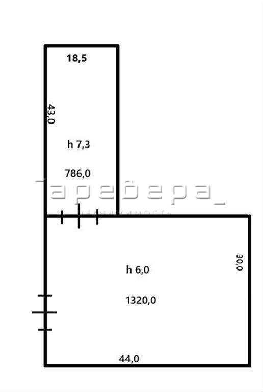
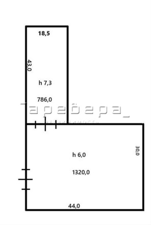
  • Описание: Предлагаю снять склад в аренду площадью 2106 кв.м, состоит из двух частей 786 кв.м (потолок 7,3м) и 1320 кв.м (потолок 6 м). Ленинский район. Склад холодный, но меньшую площадь можно отапливать. На территории возможна парковка грузового транспорта. Территория огорожена. Возможна установка видеонаблюдения. При необходимости сдадим в аренду кабинеты в административной части.

Актуальные новости про недвижку в нашем телеграм-канале: ПРОнедвижку

Похожие объекты коммерческой недвижимости

По цене
По площади