Здание на пр-т Металлургов

Идентификатор: 481396   Дата обновления: 30-03-2026

176
Показать на карте

Дополнительная информация

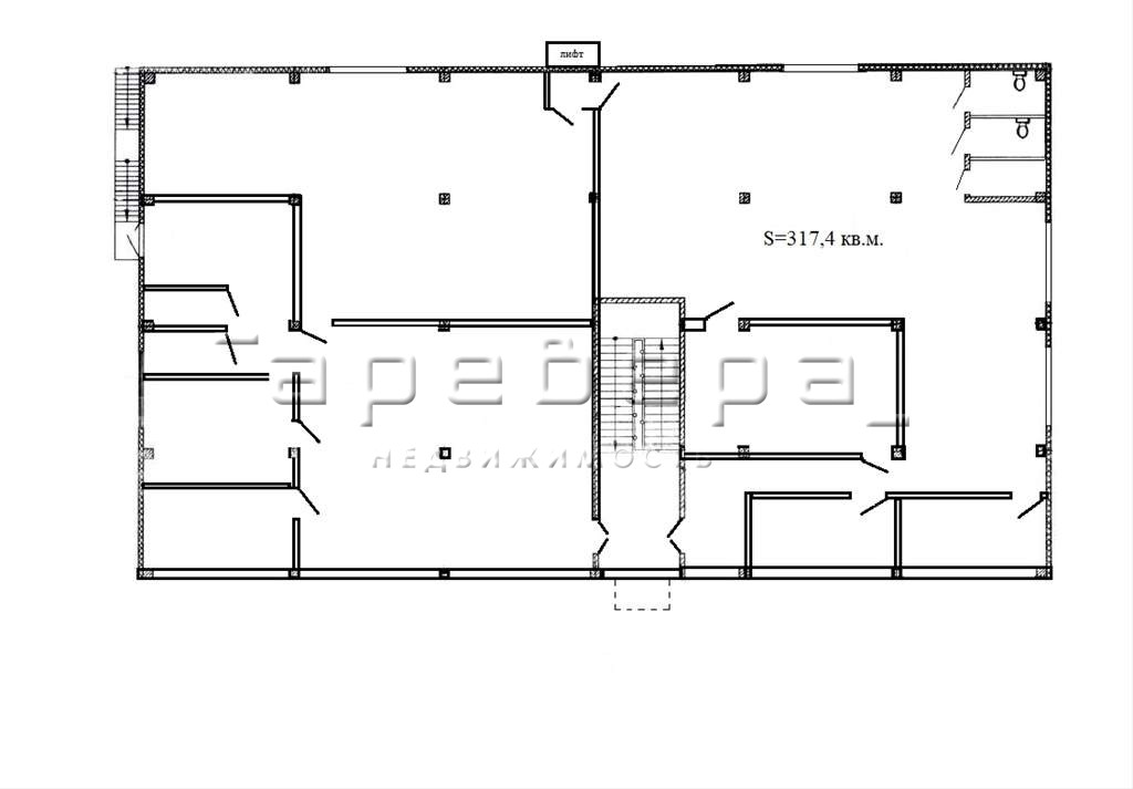
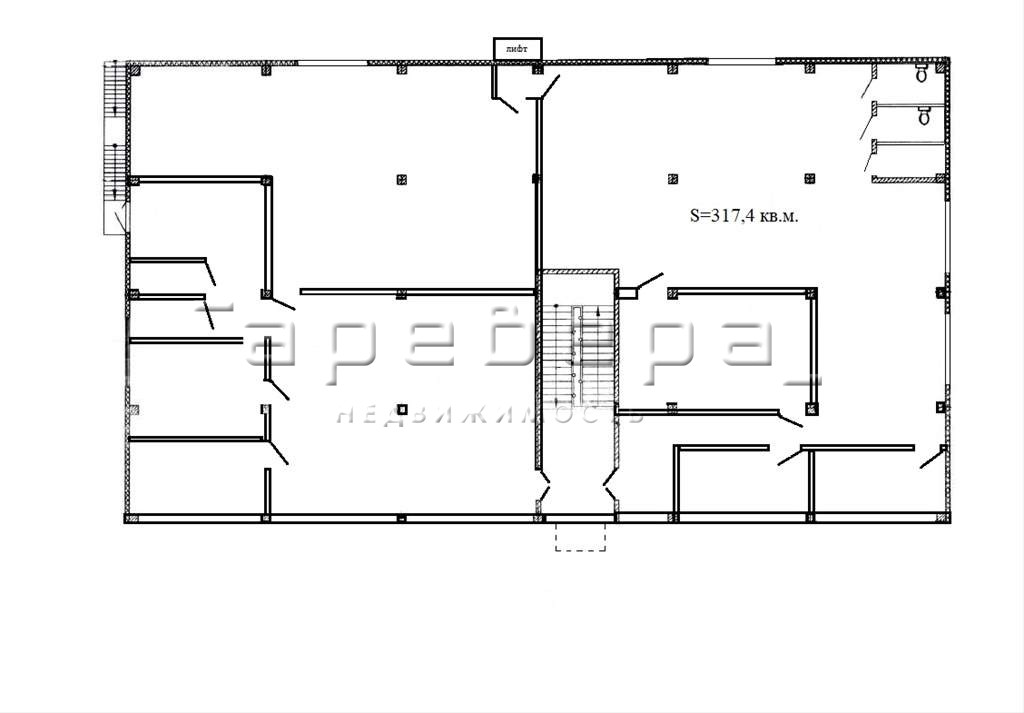
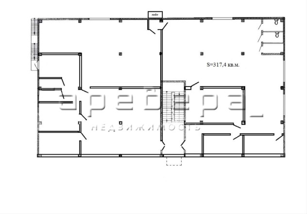
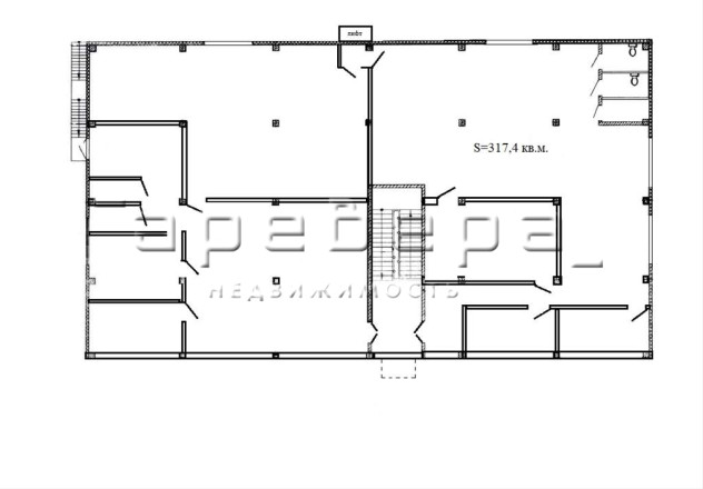
  • Описание: Предлагаем снять в аренду универсальное нежилое помещение, расположенное по адресу: г. Красноярск, пр. Металлургов, 2у. • помещение занимает часть второго этажа здания (на первом этаже размещен автосалон); • предусмотрен центральный вход с первого этажа; • оборудован наружный (с улицы) лифт грузоподъемностью 500 кг; • планировка колонного типа, есть возможность организации пространства с учетом своих потребностей; • высота потолков — 4,5 м; • витражные окна; • полы — керамогранит; • централизованные коммуникации
    Придомовая территория: Территория здания огорожена по периметру. Хорошие подъездные пути.
    Инфраструктура: Удобный выезд в любую точку города и за его пределы. Рядом расположены остановки общественного транспорта.
    Условия: Отдельно оплачиваются коммунальные платежи и эксплуатационные расходы. Есть возможность арендовать весть второй этаж здания. Арендатор услуги агентства недвижимости не оплачивает.

Актуальные новости про недвижку в нашем телеграм-канале: ПРОнедвижку

Похожие объекты коммерческой недвижимости

По цене
По площади
По расположению