Нежилое помещение на пр-т им. газеты Красноярский Рабочий

Идентификатор: 483537   Дата обновления: 11-03-2026

118
Показать на карте

Дополнительная информация

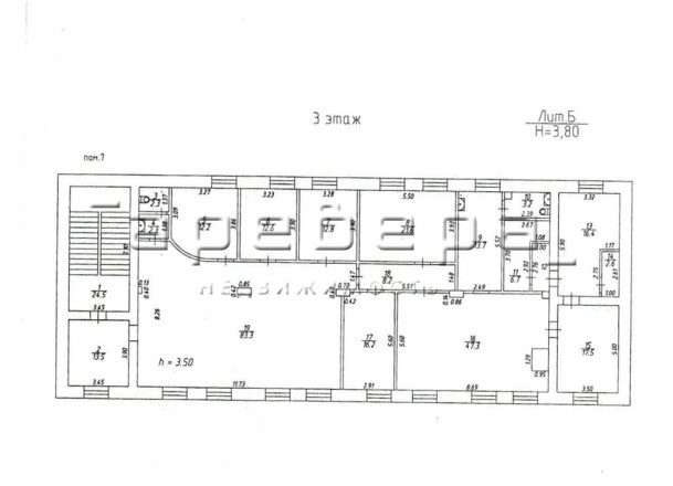
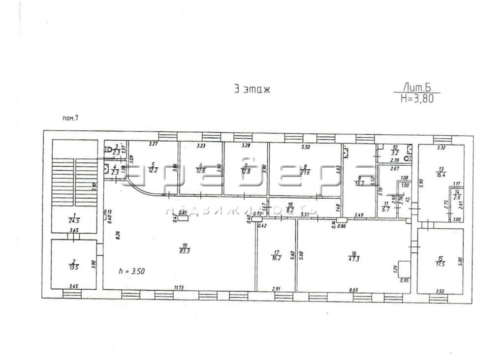
  • Описание: Предлагается в аренду отдельный третий этаж в кирпичном здании на первой линии проспекта Красноярский рабочий. Это отличное пространство с высокими потолками (3,80 м) для реализации вашего бизнес-проекта. Общая площадь этажа — 320 кв.м., планировка свободная, с несущими колоннами — позволяет создать как открытое пространство (open space), так и набрать отдельные кабинеты. Уже сформированные кабинеты имеют удобные площади: 13, 16, 21 и 47 метров. Перекрытия железобетонные.

    Локация:
    - Первая линия проспекта Красноярский рабочий (высокий трафик).
    - Напротив — ТЦ «Красноярье» (один из крупнейших торговых центров города).
    - Соседство с Институтом Цветных Металлов.

    Ключевые выгоды аренды:
    1. Высокий пешеходный и автомобильный трафик: Расположение на первой линии и рядом с ТЦ «Красноярье» гарантирует отличную проходимость и заметность для вашего бизнеса.
    2. Готовая инфраструктура и поток клиентов: В этом же здании уже работают якорные арендаторы — «Пятерочка», Fix Price, букмекерский клуб «Ставки на Спорт» и мебельная компания. Это обеспечивает постоянный поток посетителей, которые могут стать и вашими клиентами.
    3. Свободная планировка и высокие потолки: Высота потолков 3,80 метра и возможность демонтажа внутренних перегородок (кроме несущих колонн) позволяют адаптировать пространство под любые задачи: от офиса с зонами отдыха до торгового зала или студии.
    4. Мощное электричество: Выделенная мощность 75 кВт (напряжение 220 В) позволит использовать любое профессиональное оборудование без ограничений.
    5. Помещение для одного арендатора: Вы получаете в свое распоряжение целый этаж, что обеспечивает автономность и приватность для вашего бизнеса.

    Кому идеально подойдет это помещение:
    Для офиса крупной компании или холдинга: Просторные кабинеты и возможность организовать открытое пространство для отдела продаж.
    Для медицинского или стоматологического центра: Высокие потолки удобны для прокладки коммуникаций, а расположение на этаже обеспечивает тишину и конфиденциальность.
    Для образовательного или детского центра: Просторные классы, высокие потолки и близость жилых массивов и института.
    Для шоу-рума или салона: Отличная возможность организовать большое выставочное пространство с удобными подсобными помещениями.
    Для студии танцев, йоги или фитнеса: Идеальная высота потолков и большая площадь.
    Для производства, ателье или мастерской:  Железобетонные перекрытия и мощное электричество позволяют разместить легкое производство, сервисную службу или творческую мастерскую.

    Технические детали:
    - Этаж: 3
    - Материал стен: Кирпич
    - Высота потолков: 3,80 м
    - Электричество: 75 кВт, 220 В

    Цена и условия: Готовы рассмотреть ваши предложения по цене аренды и условиям сотрудничества.
    Звоните для организации просмотра!

Актуальные новости про недвижку в нашем телеграм-канале: ПРОнедвижку

Похожие объекты коммерческой недвижимости

По цене
По площади
По расположению