Офис на ул. 2-я Брянская

Идентификатор: 480488   Дата обновления: 15-12-2025

153
Показать на карте

Дополнительная информация

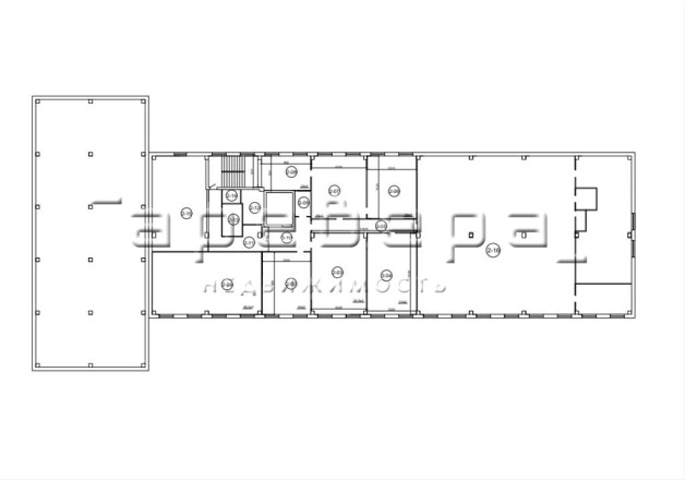
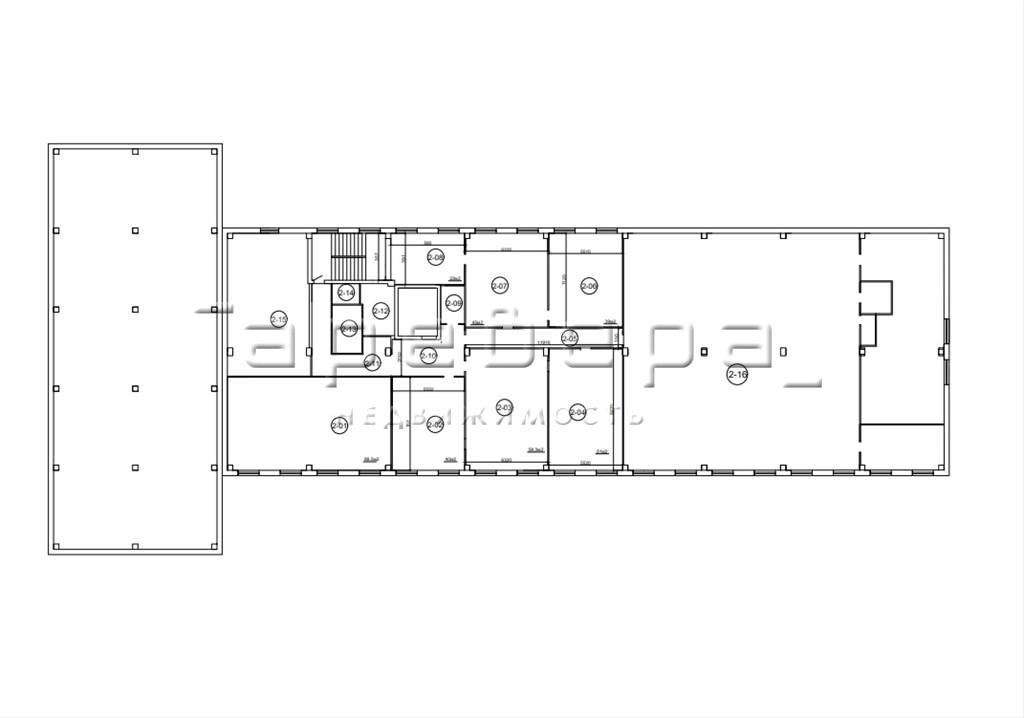
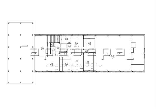
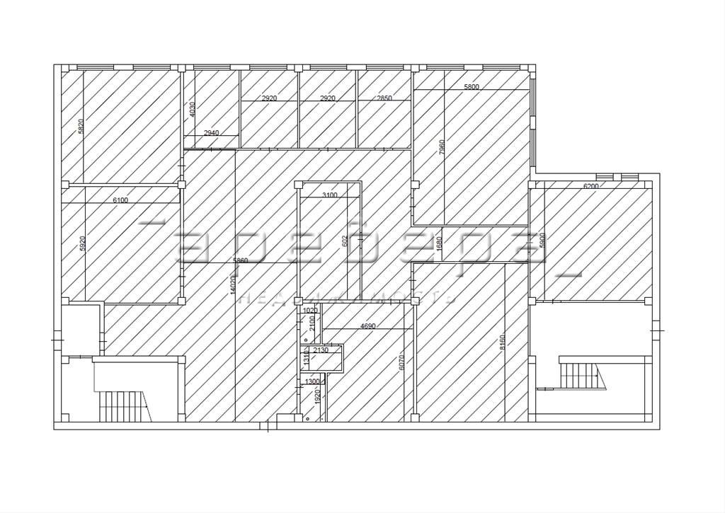
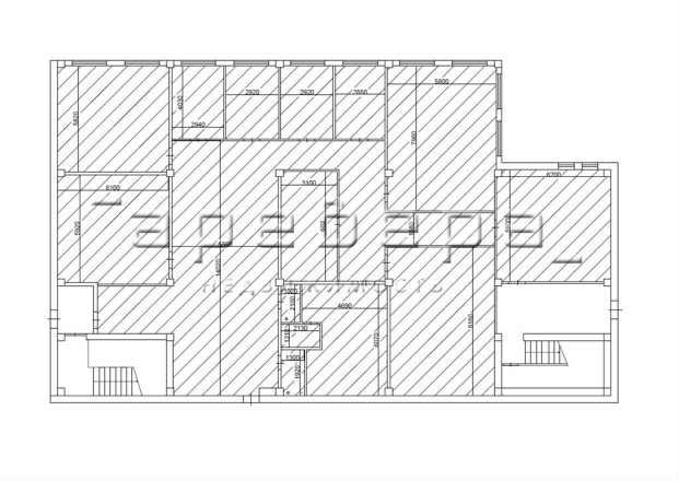
  • Описание: Сдаются в аренду просторные нежилые помещения общей площадью 320 - 800 квадратных метра, идеально подходящие для офиса или представительства компании. Характеристики:
    * Общая площадь 1 этажа: 460 м
    * Общая площадь:  326 м
    * Количество кабинетов: 7
    * Площадь кабинетов: 22 м, 39 м, 40 м, 45 м, 54м, 58,3 м, 68м, 70м
    * Состояние: Абсолютно новый ремонт
    * Стоимость аренды: 770 р за 1 м.кв в месяц (все включено)
    * Парковка: Наличие собственной парковки на территории.

    Преимущества:
    * Гибкость аренды: Возможность арендовать как все помещение, так и отдельные кабинеты.
    * Современный ремонт: Комфортные и функциональные помещения.
    * Включенные коммунальные платежи: Стоимость аренды включает все коммунальные платежи.
    * Парковка: Удобная парковка для арендаторов и посетителей.

    Свяжитесь с нами для уточнения деталей аренды и осмотра помещения.

Актуальные новости про недвижку в нашем телеграм-канале: ПРОнедвижку

Похожие объекты коммерческой недвижимости

По цене
По площади
По расположению