Офис на ул. Маерчака

Идентификатор: 479803   Дата обновления: 22-12-2025

242
Показать на карте

Дополнительная информация

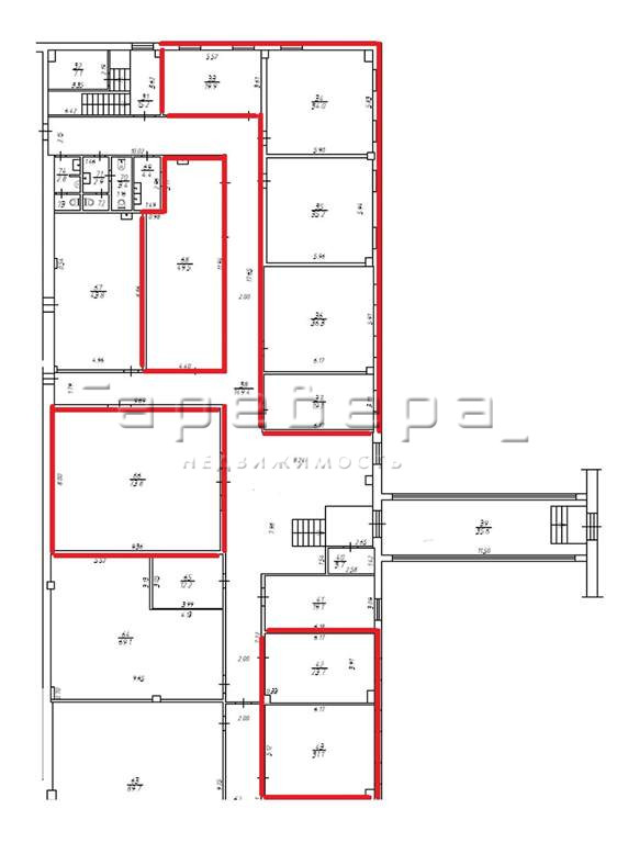
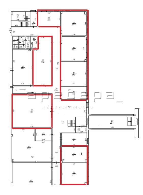
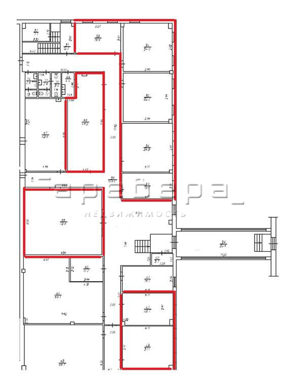
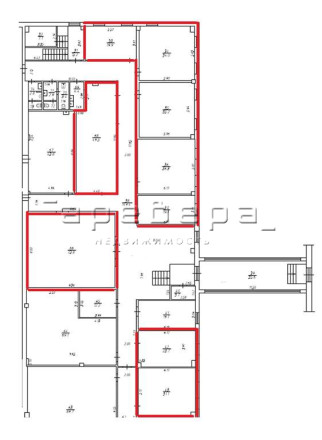
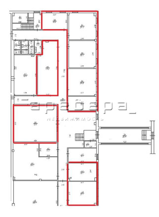
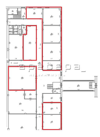
  • Описание: Предлагаем снять в аренду офисное помещение общей площадью 322,6 м2, расположенное по адресу: г.Красноярск, ул.Маерчака, 8, стр.2. Второй этаж, кабинетная планировка (9 кабинетов площадью 19,9 м2, 34 м2, 35,2 м2, 36,3 м2, 19,1 м2, 23,7 м2, 31,1 м2, 49,5 м2, 73,8 м2), два с/узла, видеонаблюдение, интернет, круглосуточная охрана.
    Инфраструктура: Помещение расположено в районе с развитой инфраструктурой, рядом размещены кафе, банк, магазины, остановки общественного транспорта. Удобная транспортная доступность, до офисного центра легко добраться из любой точки города.
    Условия: Арендатор услуги агентства недвижимости не оплачивает.

Актуальные новости про недвижку в нашем телеграм-канале: ПРОнедвижку

Похожие объекты коммерческой недвижимости

По цене
По площади
По расположению